HUB
Collections
Classifications
About
App
CSK1779
Archive
-
AVRO Museum
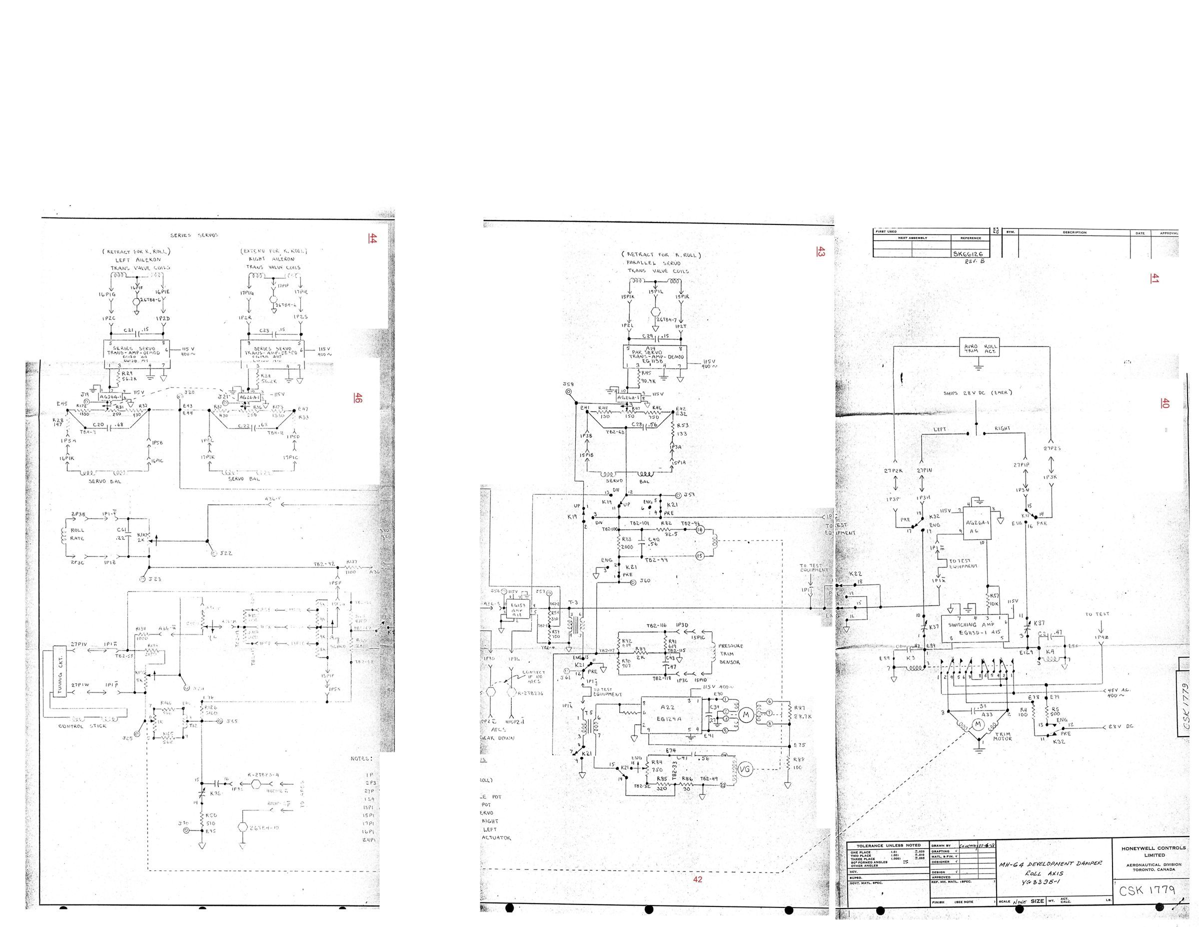
Name/Title
CSK1779
Entry/Object ID
1242
Category
Blueprint
Archive Items Details
Description
MH-64 Development DAMPER, Roll Axis YG3398-1
Web Links and URLs
Research Tips & Terms of Use
General Notes
Note
Date / Time Period: 10/16/58 Pages: 1 Author: Courtney Publisher: Honeywell Controls Limited