1994 Shower-Locker Room Expansion Phase 1 Progress

Click to download 2 page pdf of drawings A3, A6

Click to download 2 page pdf of drawings A3, A6

Name/Title

1994 Shower-Locker Room Expansion Phase 1 Progress

Entry/Object ID

Architectural Plans 1994

Scope and Content

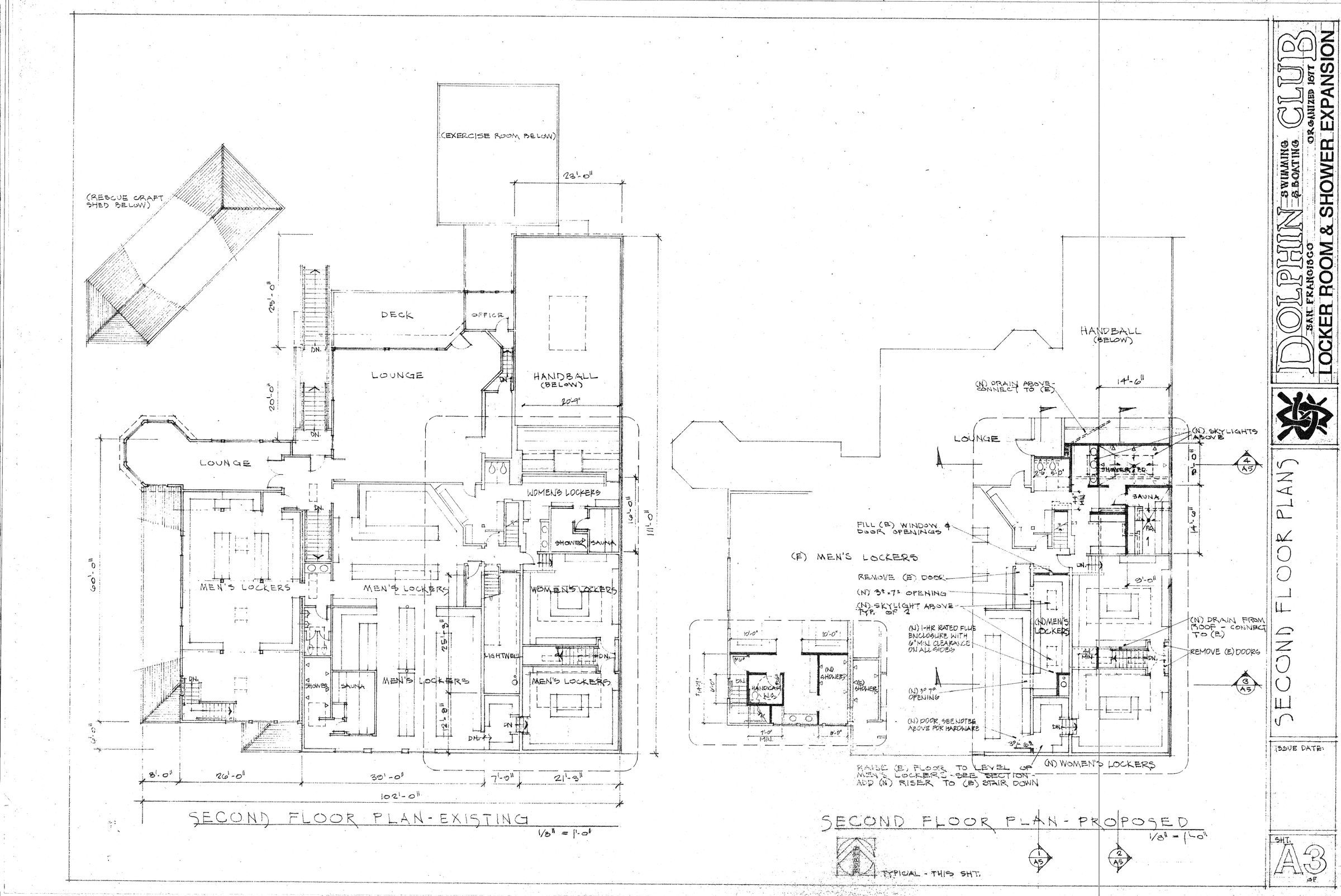
Two page pdf of drawings developed for the shower locker room expansion, no date but produced in 1994. Sheet A3 has 2nd floor plan as it was before the remodel and a plan of the proposed remodel that was dropped in favor of the current design. (See 1994 Shower-Locker Room Expansion Phase 1). Sheet A6 describes parts of the building in section, as it was before the remodel, including the light well and locker space that was converted to the current men's shower and sauna. The original no longer exists because it was cut up and pasted into the 1994 Shower-Locker Room Expansion Phase 1 drawings.

Archive Details

Date(s) of Creation

1994

Location

Building

Lee Hammack's files