2013 Rear Stairs Repair Plans and Job Card Packet

Name/Title

2013 Rear Stairs Repair Plans and Job Card Packet

Entry/Object ID

Architectural Plans 2013

Tags

Boathouse

Scope and Content

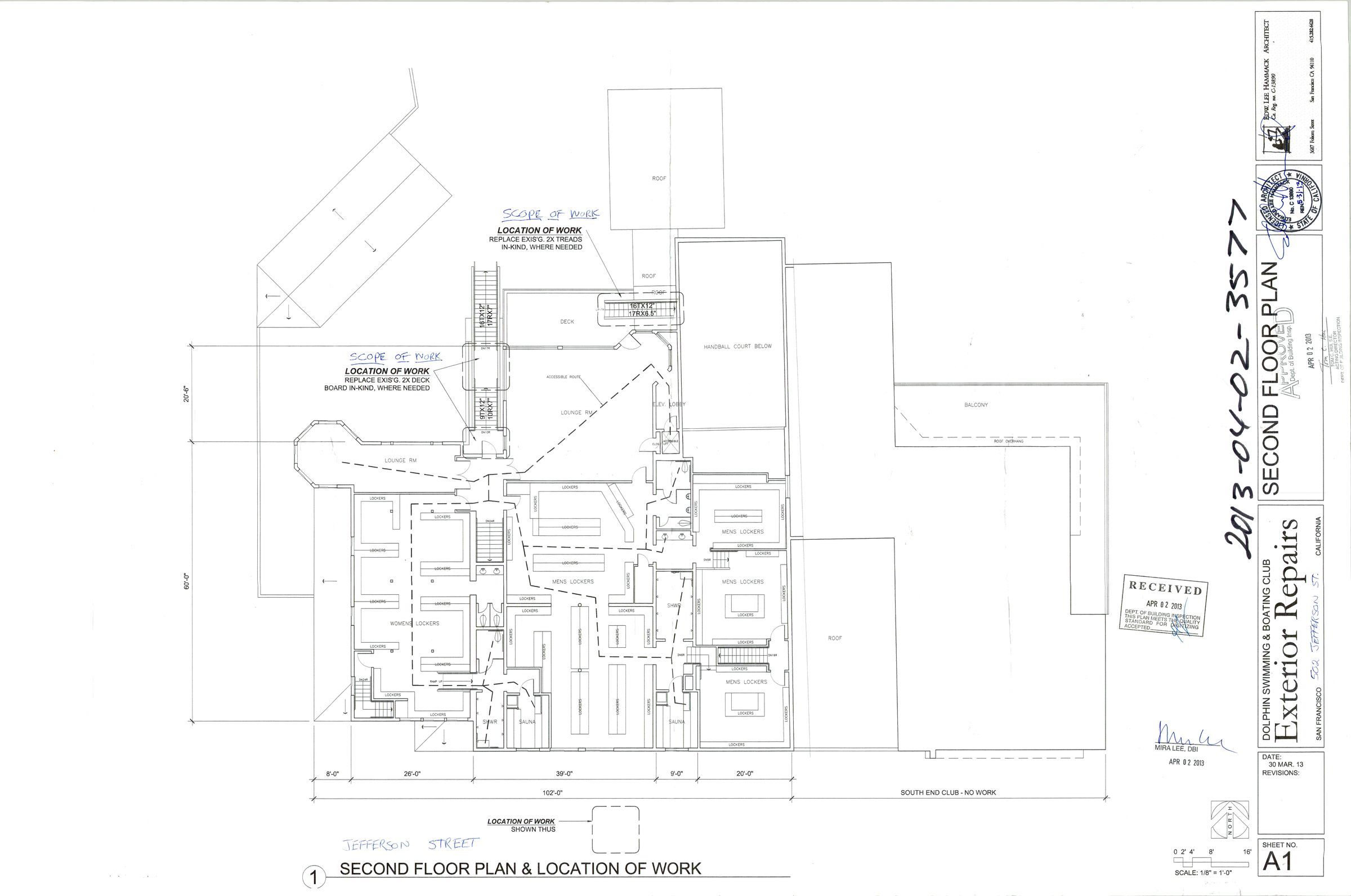
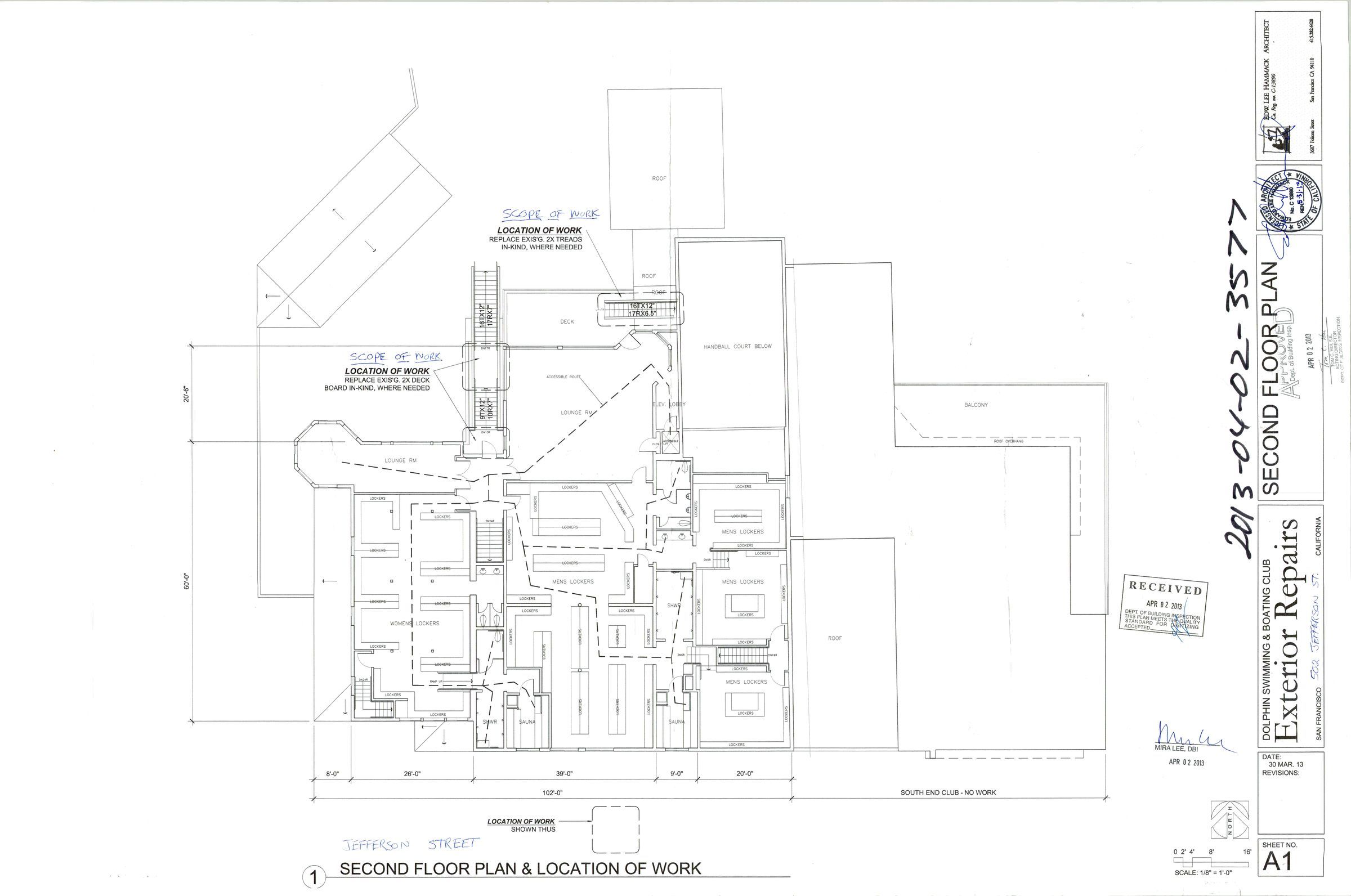
Drawings and Plans for back stairs repairs April 2013. The 7 page pdf includes job card, permit, receipt for cost of permit, and inspection papers. Scope limited to repair of intermediate landing. Construction by Dolphin member John Hornor.

Archive Details

Creator

Lee Hammack Architect

Date(s) of Creation

April 2, 2013

Location

Location

Building

Lee Hammack's files

Date

April 28, 2023