Plans for Women's Locker Room Renovation 1997-1999

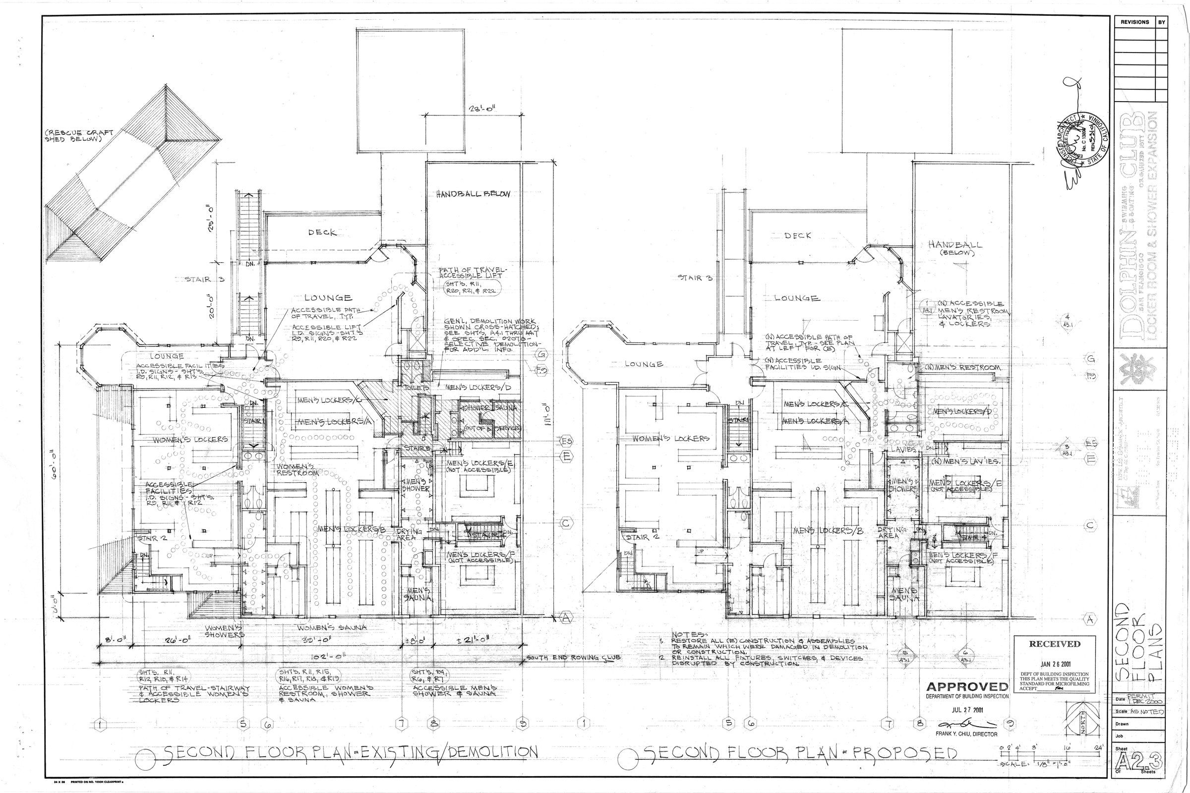
Page 5 Shows Existing (left) and Proposed (right) Men and Women Locker Rooms

Page 5 Shows Existing (left) and Proposed (right) Men and Women Locker Rooms

Name/Title

Plans for Women's Locker Room Renovation 1997-1999

Entry/Object ID

Tiles 02

Scope and Content

In 1997 Phase 2 of a major renovation of both men's and women's locker rooms was undertaken. Page 5 shows second floor locker rooms existing (left) and proposed (right). Page 9 shows the new design of women's locker room. Page 13 shows drawings of new women's shower. (Taken from a 23 page pdf of plans.) Approved permit drawings, dated June 6, 1997, Application No. 9421421. Architectural drawings by Lee Hammack, structural drawings by Peter Van Maren. Scope included: the remodel of the boathouse addition second floor for the women’s locker room, including new skylights; construction of new women’s restroom, shower & sauna in the area of the former men’s facilities; installation of a residential type elevator for access compliance; a ramp entry to the weight room; and other upgrades. Constructed by Roberts & Sons Builders.

Archive Details

Creator

Lee Hammack Architect

Date(s) of Creation

1997 - 2000

Archive Notes

Cataloged by Morgan Kulla 10/5/22

Location

Location

Room

Womens' Locker Room

Date

October 7, 2022