Glendale Police Department

1973

1973

Name/Title

Glendale Police Department

Entry/Object ID

2000.003.6039

Scope and Content

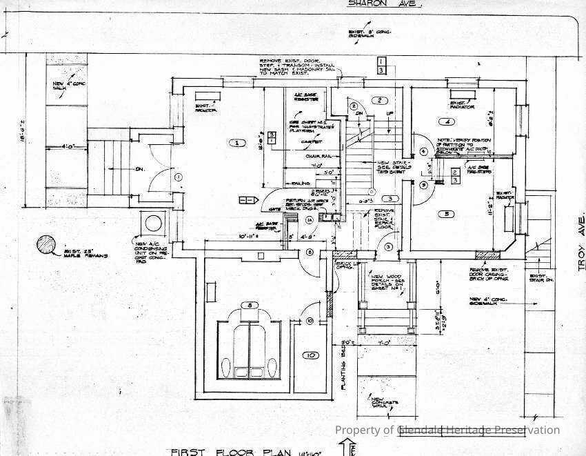
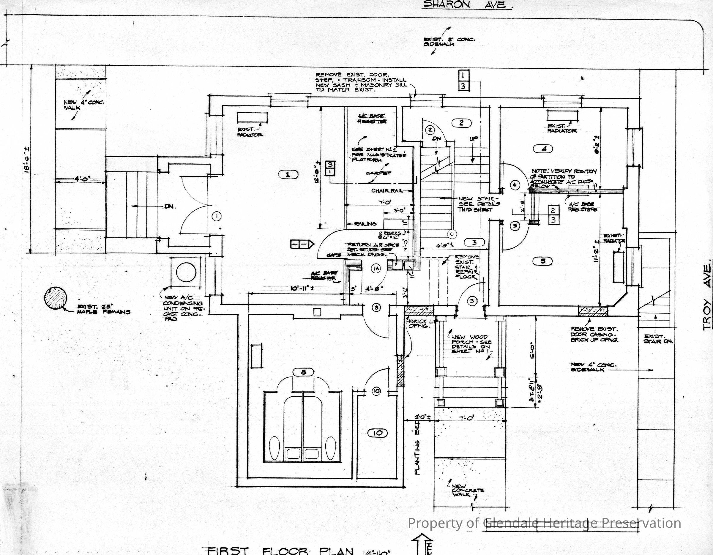
The Glendale Police Station, a Pivotal Structure, is located at 301 Sharon Avenue East. This building has been in continuous use as a Police Station since 1873. The construction of the Police Station and jail came about as the result of requests for a public building that would serve many purposes. The architect was Harry N. Wilson and the builder was Charles S. Sundray. The building was completed in 1871 at a cost of $3,945 and Council met in its new chambers in October of that year. At one time the GHP Museum was located in the building. Collection includes renovation drawings of first floor. A newspaper article from the Suburban Press dated 12/3/87 says " Beginning of work on a $125,393 project to renovate the Station as it was required by the state to meet new standards for detention facilities. The project also included improvements in the electrical, plumbing and heating systems.

Lexicon

Search Terms

Pivotal Structure, 301 Sharon Avenue East, Police Department, Victorian Period Plaque, Italianate, Architects - H. Neill Wilson

Relationships

Related Places

Notes

Address: Sharon Avenue East Street No.: 301

Create Date

February 10, 2006