17 Hayne Street (H.B. Brux Stationery) (a/k/a 9 Hayne Street)

H.B. Brux Receipt (1900): Origsize: 2.75x5.25; Origformat: Document/Photocopy; Resolution: 200 dpi
H.B. Brux Receipt (1900)

Origsize: 2.75x5.25; Origformat: Document/Photocopy; Resolution: 200 dpi

Name/Title

17 Hayne Street (H.B. Brux Stationery) (a/k/a 9 Hayne Street)

Entry/Object ID

HAYNE.017.1

Scope and Content

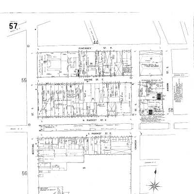
One of several buildings on the site currently occupied by Double Tree Suites. Previously numbered 9 Hayne Street. No building history on file. Needs further research. File contains excerpt from Old Codgers Charleston Address Book listing occupancy from 1900-1920; photocopy of a 1900 statement for H.B. Brux, Stationery, Tinware, Wrapping, Paper, Paper and Cloth Bags, No. 9 Hayne Street. (See Media link for 1902 Sanborn Map.)

Collection

Historic Charleston Foundation Property Records

Acquisition

Accession

HAYNE.017.

Source or Donor

17 Hayne Street (H.B. Brux Stationery) (a/k/a 9 Hayne Street)

Acquisition Method

Collected by Staff

Lexicon

Search Terms

Hayne Street, Demolished buildings, lost buildings, Historic buildings--South Carolina--Charleston, Commercial buildings--South Carolina--Charleston, Lost architecture--South Carolina--Charleston

Legacy Lexicon

Object Name

Property File

Archive Details

Archive Size/Extent

1 File Folder

Archive Notes

Finding Aids: Index to Property Files Level of Description: Folder

Location

Location

Shelf

Property File Shelves

Room

Margaretta P. Childs Archives

Building

Missroon House

Category

Permanent

Date

February 7, 2023

Location

Container

PF Box 46

Shelf

Prop File Shelves, Property File Shelves

Room

Margaretta P. Childs Archives

Building

Missroon House

Category

Permanent

Relationships

Related Publications

Notes

Buildings of Charleston (see Abstract), pg. 353

General Notes

Note

Notes: Re: 1900 statement. The original statement, with others, were discovered in the attic of 100 Bull Street by Pierre Manigault, the current owner, who bought the property ca. 2001. This statement and others were assembled (glued) together and framed. See GrocersReceipts.TIF (HiRes028) for scan of originals.

Created By

admin@catalogit.app

Create Date

December 7, 2015

Updated By

admin@catalogit.app

Update Date

February 17, 2023