4 Orange Street

Name/Title

4 Orange Street

Entry/Object ID

ORANGE.004.2

Scope and Content

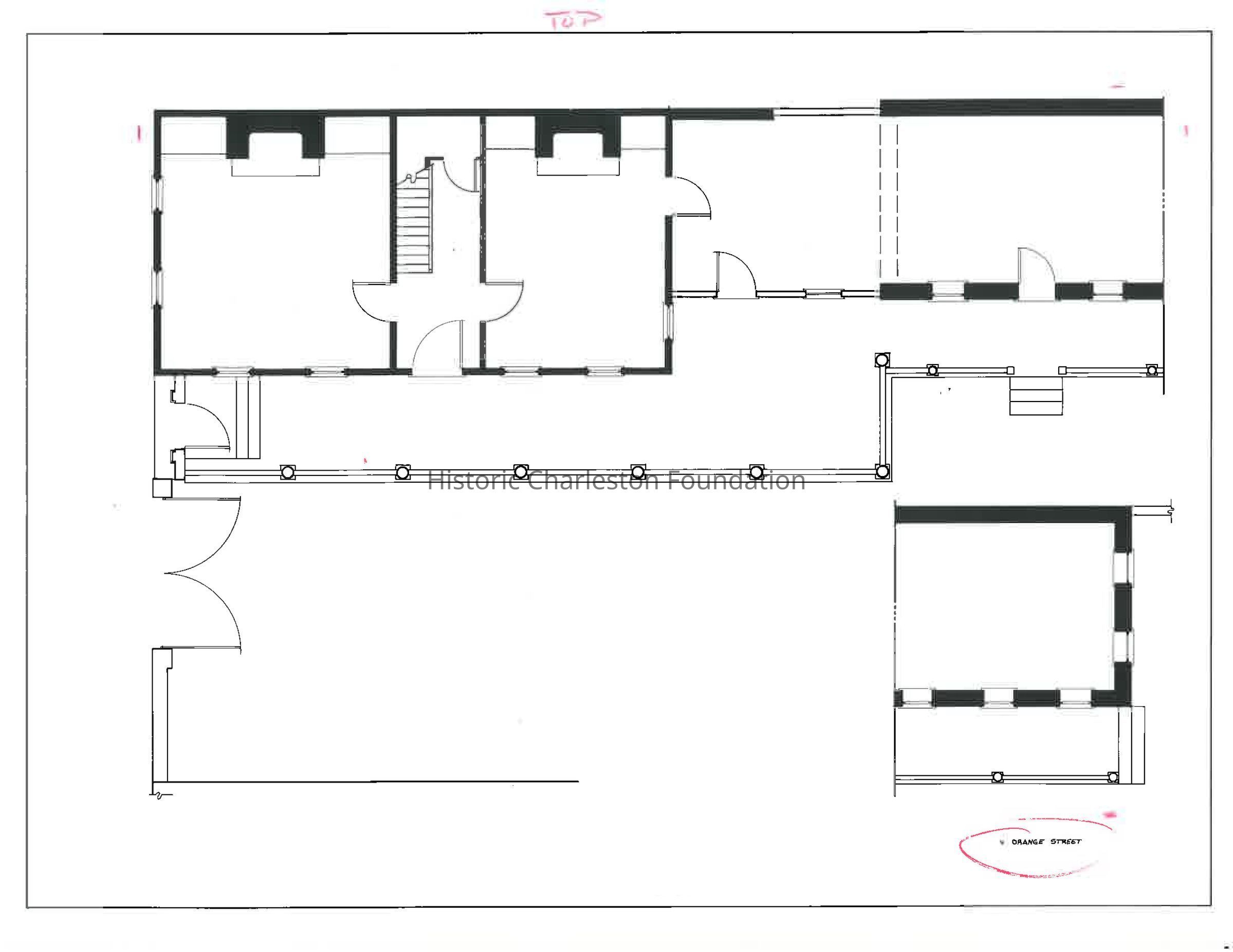
Title of drawing: 4 Orange Street Date of drawing: 1/13/1994 Name of creator(s): Louis Nelson and B. Herman Set includes photocopy of Floor Plan field sketch and finalized, ink-on-Mylar drawing. Photocopy (field sketch) includes notes for construction periods; also has building, creator and date identification and homeowners (Jennifer & Tom Cooper). Finalized ink-on-Mylar drawing includes, only building identification. No scale; photocopy has noted measurements.

Collection

Historic Charleston Foundation Property Records

Acquisition

Accession

ORANGE.004.

Source or Donor

4 Orange Street (Samuel Carne House)

Acquisition Method

Collected by Staff

Lexicon

Nomenclature 4.0

Nomenclature Secondary Object Term

Drawing, Architectural

Nomenclature Primary Object Term

Projection

Nomenclature Sub-Class

Graphic Documents

Nomenclature Class

Documentary Objects

Nomenclature Category

Category 08: Communication Objects

Search Terms

Architectural drawings, Floor plans, Orange Street, Historic buildings--Designs and plans

Archive Details

Creator

Nelson, Louis P.

Date(s) of Creation

Jan 13, 1994

Archive Size/Extent

2 pages, 18"x24", Photocopy and Mylar

Archive Notes

Date(s): 1994 Finding Aids: See Finding Aid to Architectural Drawings, Maps, and Plats. See List of Properties; then locate Cabinet, Drawer, Folder. Level of Description: Item

Location

Location

Drawer

Drawer 3

Cabinet

Blueprints-Maps 2

Room

Margaretta P. Childs Archives

Building

Missroon House

Category

Permanent

Date

February 7, 2023

Relationships

Related Entries

Notes

ORANGE.004.1, ORANGE.004.3

Created By

admin@catalogit.app

Create Date

July 10, 2007

Updated By

admin@catalogit.app

Update Date

February 17, 2023