635 East Bay Street

Name/Title

635 East Bay Street

Entry/Object ID

EBAY.635.3

Scope and Content

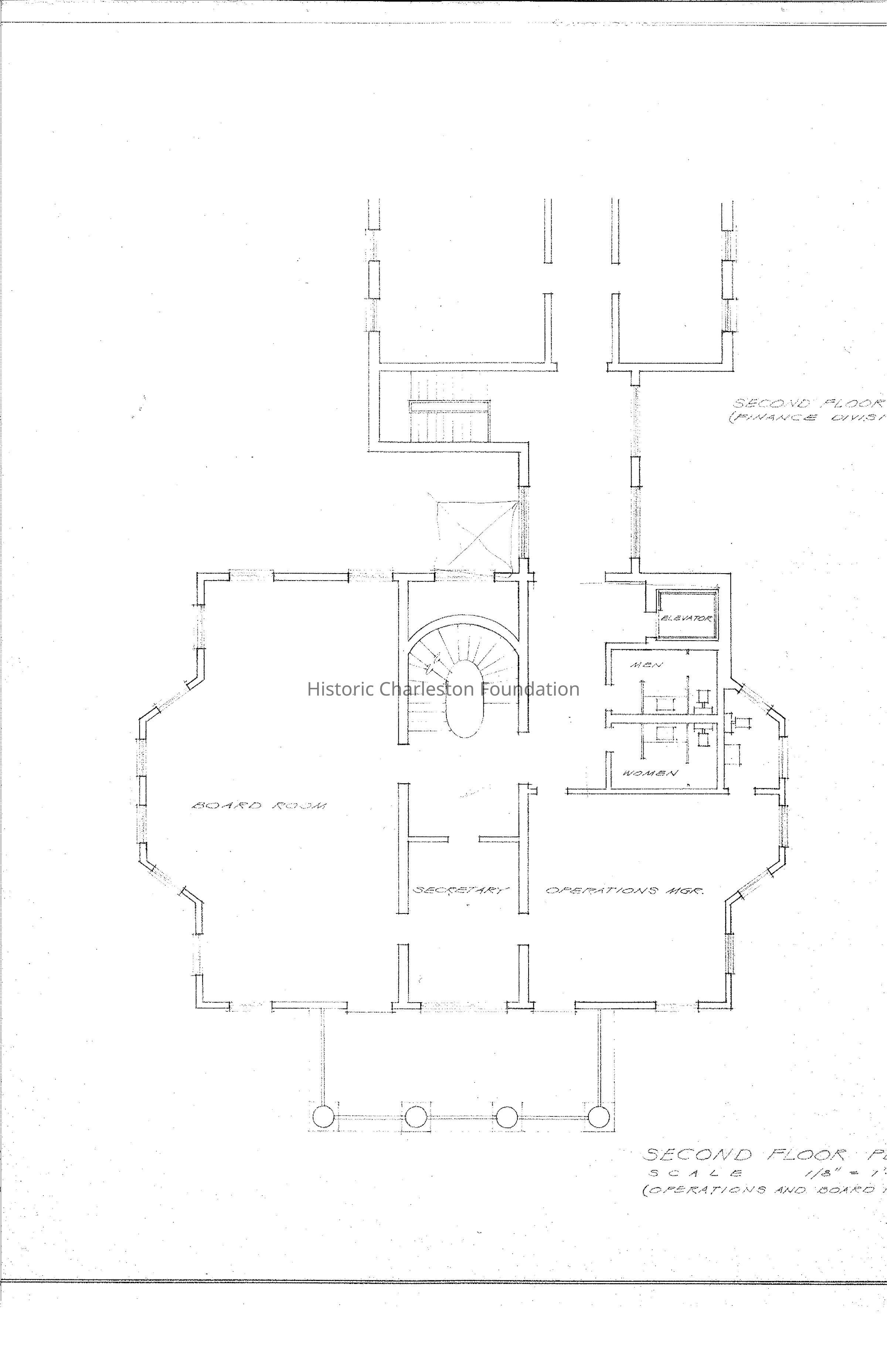
Title of drawing: 635 East Bay Street (Faber House) Date of drawing: 6/13/1964 Name of creator(s): Lucas and Stubbs, AIA, Architects 2nd Floor Plan, 3rd Floor Plan. Both pages of set have 2nd and 3rd Floor Plans; page 1 drawings appear to be incomplete but contains more notations. Page 2 appears to have completed drawings but no notations. Only page 1 is dated. Drawings were found separately by cataloger but are presumed to be a set.

Collection

Historic Charleston Foundation Property Records

Acquisition

Accession

EBAY.635.

Source or Donor

635 East Bay Street (Faber House)

Acquisition Method

Collected by Staff

Lexicon

Nomenclature 4.0

Nomenclature Secondary Object Term

Drawing, Architectural

Nomenclature Primary Object Term

Projection

Nomenclature Sub-Class

Graphic Documents

Nomenclature Class

Documentary Objects

Nomenclature Category

Category 08: Communication Objects

Search Terms

Architectural drawings, Floor plans, Measured drawings, Blueprints, Covenant Property, East Bay Street, Historic buildings--Designs and plans

Archive Details

Date(s) of Creation

Jun 13, 1964

Archive Size/Extent

2 pages, 16"x24", Blueprint

Archive Notes

Date(s): 1964 Finding Aids: See Finding Aid to Architectural Drawings, Maps, and Plats. See List of Properties; then locate Cabinet, Drawer, Folder. Level of Description: Item

Location

Location

Drawer

Drawer 5

Cabinet

Blueprints-Maps 1

Room

Margaretta P. Childs Archives

Building

Missroon House

Category

Permanent

Date

February 7, 2023

Relationships

Related Entries

Notes

2011.015.92, EBAY.635.1, EBAY.635.10a-b, EBAY.635.11a-b, EBAY.635.12, EBAY.635.13, EBAY.635.14a-b, EBAY.635.15a-c, EBAY.635.16, EBAY.635.17, EBAY.635.18, EBAY.635.19a-e, EBAY.635.2, EBAY.635.20, EBAY.635.21, EBAY.635.22, EBAY.635.23, EBAY.635.24, EBAY.635.4, EBAY.635.5, EBAY.635.6, EBAY.635.7, EBAY.635.8, EBAY.635.9

Created By

admin@catalogit.app

Create Date

July 2, 2007

Updated By

admin@catalogit.app

Update Date

February 17, 2023