Interior Restoration of 36 Mary Street for Historic Charleston Foundation

36 Mary Street Floor Plans

36 Mary Street Floor Plans

Name/Title

Interior Restoration of 36 Mary Street for Historic Charleston Foundation

Entry/Object ID

MARY.036.3

Scope and Content

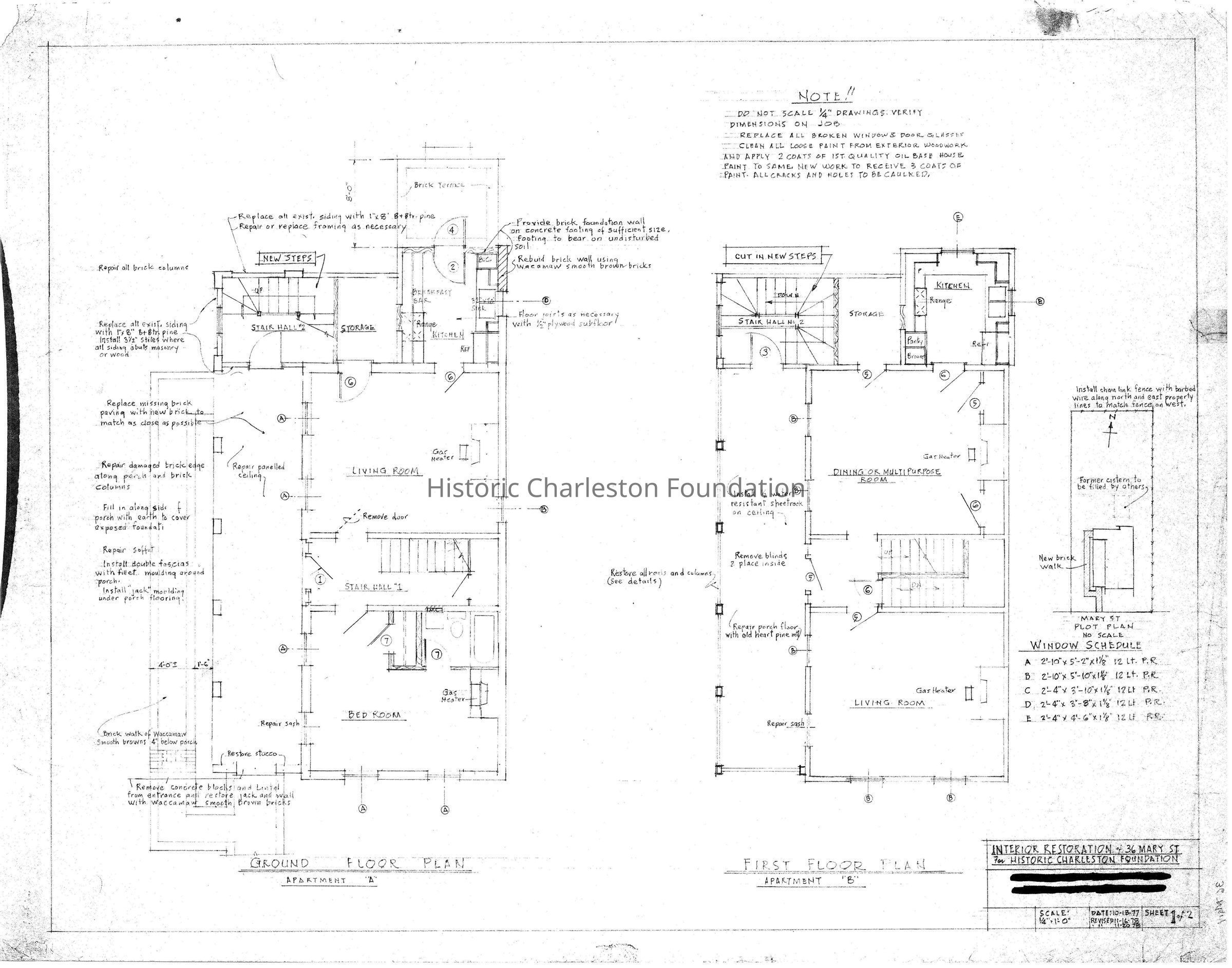
Title of drawing: Interior Restoration of 36 Mary Street for Historic Charleston Foundation Date of drawing: 10/18/1977, Revised: 11/16/1978 and 11/20/1978 Name of creator: Herbert A. DeCosta. Sheet 1: Plot Plan, Ground Floor Plan (Apartment A), First Floor Plan (Apartment B) Sheet 2: Second Floor Plan (Apartment B), Attic Plan. Similar, but later date, to MARY.036.4. Unable to determine which plan was executed based on photographs. Creator's name is blocked out but presumed to be by H.A. DeCosta Co.

Collection

Historic Charleston Foundation Property Records

Acquisition

Accession

MARY.036.

Source or Donor

36 Mary Street

Acquisition Method

Collected by Staff

Lexicon

Nomenclature 4.0

Nomenclature Secondary Object Term

Drawing, Architectural

Nomenclature Primary Object Term

Projection

Nomenclature Sub-Class

Graphic Documents

Nomenclature Class

Documentary Objects

Nomenclature Category

Category 08: Communication Objects

Search Terms

Architectural drawings, Floor plans, Measured drawings, Site plans, Blueprints, Covenant Property, Mary Street, Mazyckborough and Wraggborough, Historic buildings--South Carolina--Charleston--Designs and plans

Archive Details

Creator

DeCosta, Herbert A.

Archive Size/Extent

2 p., 22"x28", Blueprint 1 p. transparency

Archive Notes

Date(s) Created: 10/18/1977, Revised: 11/16/1978 and 11/20/1978 Date(s): 1977-1978 Finding Aids: See Finding Aid to Architectural Drawings, Maps, and Plats. See List of Properties; then locate Cabinet, Drawer, Folder. Level of Description: Item

Location

Location

Drawer

Drawer 2

Cabinet

Blueprints-Maps 2

Room

Margaretta P. Childs Archives

Building

Missroon House

Category

Permanent

Date

February 7, 2023

Location

Drawer

Drawer 1

Room

Margaretta P. Childs Archives

Building

Missroon House

Category

Permanent

Relationships

Related Entries

Notes

MARY.036.1, MARY.036.2, MARY.036.4, MARY.036.5a-r, MARY.036.6

Created By

admin@catalogit.app

Create Date

July 9, 2007

Updated By

admin@catalogit.app

Update Date

February 17, 2023