25 Sires Street [Proposed New Construction]

Name/Title

25 Sires Street [Proposed New Construction]

Entry/Object ID

SIRES.025.2

Scope and Content

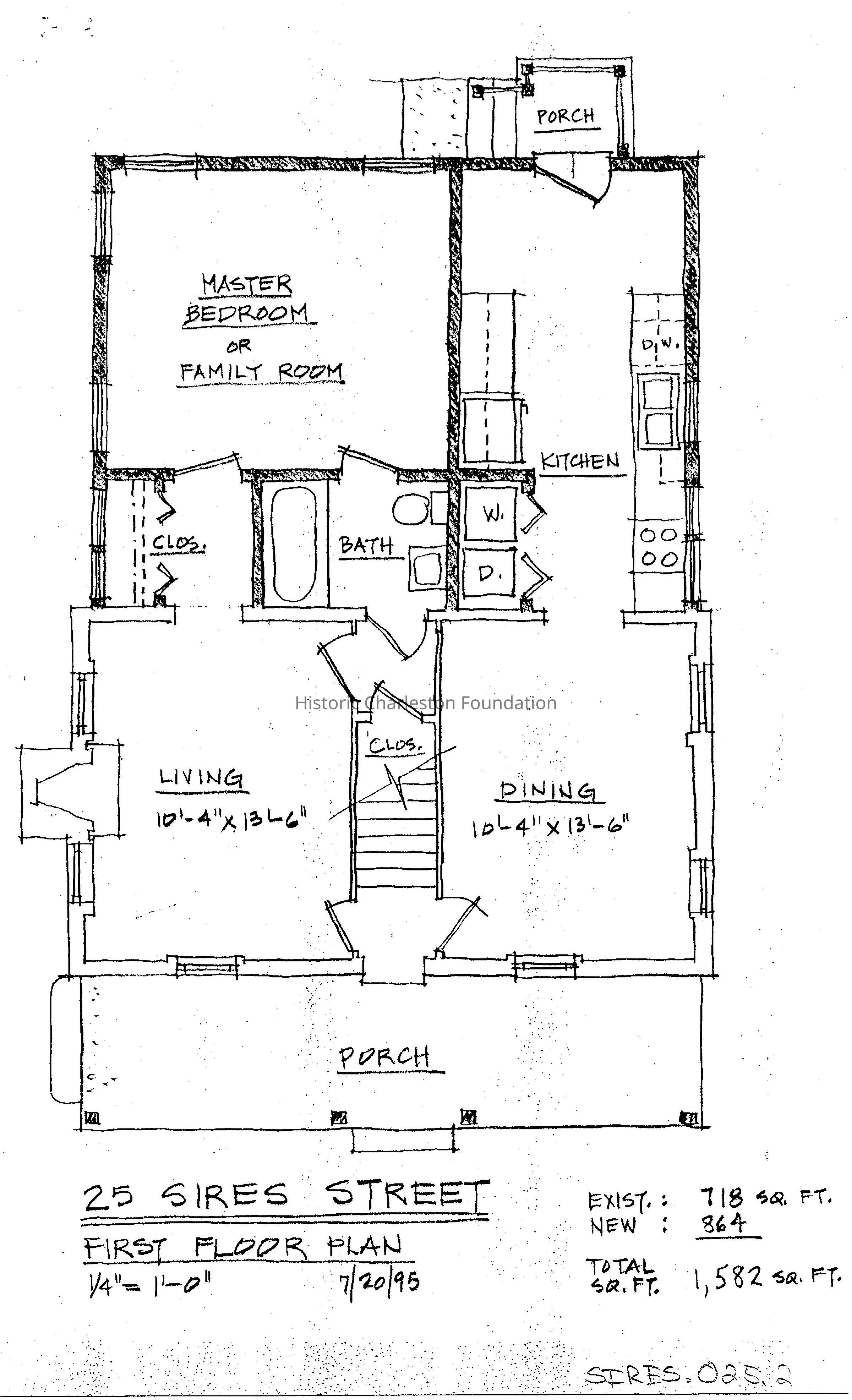
Title of drawing: 25 Sires Street [Proposed New Construction] Date of drawing: 7/20/1995 Name of creator(s): Not Indicated 1st Floor Plan, 2nd Floor Plan. Notes on drawings indicated building square footage. 8.5"x14" drawings. Proposed new construction plans for 27 Sires Street. Never built but may be used as reference. See SIRES.027.2.

Collection

Historic Charleston Foundation Property Records

Acquisition

Accession

SIRES.025.

Source or Donor

25 Sires Street (Michelmann-Michel House).

Acquisition Method

Collected by Staff

Lexicon

Nomenclature 4.0

Nomenclature Secondary Object Term

Drawing, Architectural

Nomenclature Primary Object Term

Projection

Nomenclature Sub-Class

Graphic Documents

Nomenclature Class

Documentary Objects

Nomenclature Category

Category 08: Communication Objects

Search Terms

Architectural drawings, Floor plans, Measured drawings, Covenant Property, Sires Street, Historic buildings--Designs and plans

Archive Details

Creator

Unattributed

Date(s) of Creation

Jul 20, 1995

Archive Size/Extent

2 pages, 8.5"x14", Photocopy

Archive Notes

Date(s): 1995 Finding Aids: See Finding Aid to Architectural Drawings, Maps, and Plats. See List of Properties; then locate Cabinet, Drawer, Folder. Level of Description: Item

Location

Location

Drawer

Drawer 4

Cabinet

Blueprints-Maps 2

Room

Margaretta P. Childs Archives

Building

Missroon House

Category

Permanent

Date

February 7, 2023

Relationships

Related Entries

Notes

SIRES.017.01, SIRES.025.1, SIRES.027.1, SIRES.027.2, SIRES.029.1a-b

Created By

admin@catalogit.app

Create Date

July 16, 2007

Updated By

admin@catalogit.app

Update Date

February 17, 2023