317 Meeting Street

1888 Sanborn Map: Origformat: Document/Photocopy
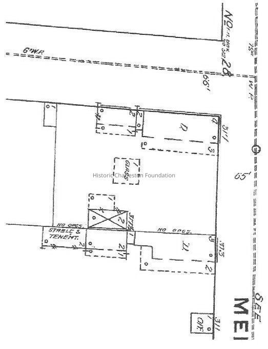
1888 Sanborn Map

Origformat: Document/Photocopy

Name/Title

317 Meeting Street

Entry/Object ID

MEETING.317.1

Scope and Content

Constructed ca. 1822. Located at the corner of Calhoun and Meeting Streets, the 3½ story home of the Horlbeck family that stood on the site was a 3-story brick house on a tall basement. It was demolished in 1939 to make way for a service station. Currently site of the First Citizen's Bank building, File contains graduate student report (Laura Burghardt, 2007) on the history of the property, which includes historical and chain-of-title research, maps, photos, and other supporting documentation (deeds, etc.). No photos on file. Image in this record is from document in the Property File.

Collection

Historic Charleston Foundation Property Records

Acquisition

Accession

MEETING.317.

Source or Donor

317 Meeting Street

Acquisition Method

Collected by Staff

Lexicon

Search Terms

Meeting Street, Demolished buildings, lost buildings, Street corner, Historic buildings--South Carolina--Charleston, Lost architecture--South Carolina--Charleston

Legacy Lexicon

Object Name

Property File

Archive Details

Archive Size/Extent

1 File Folder

Archive Notes

Finding Aids: Index to Property Files Level of Description: Folder

Location

Location

Shelf

Property File Shelves

Room

Margaretta P. Childs Archives

Building

Missroon House

Category

Permanent

Date

February 7, 2023

Location

Container

PF Box 74

Shelf

Prop File Shelves, Property File Shelves

Room

Margaretta P. Childs Archives

Building

Missroon House

Category

Permanent

Created By

admin@catalogit.app

Create Date

August 23, 2010

Updated By

admin@catalogit.app

Update Date

February 17, 2023