McLeod Plantation

Name/Title

McLeod Plantation

Entry/Object ID

MCLEOD.06

Scope and Content

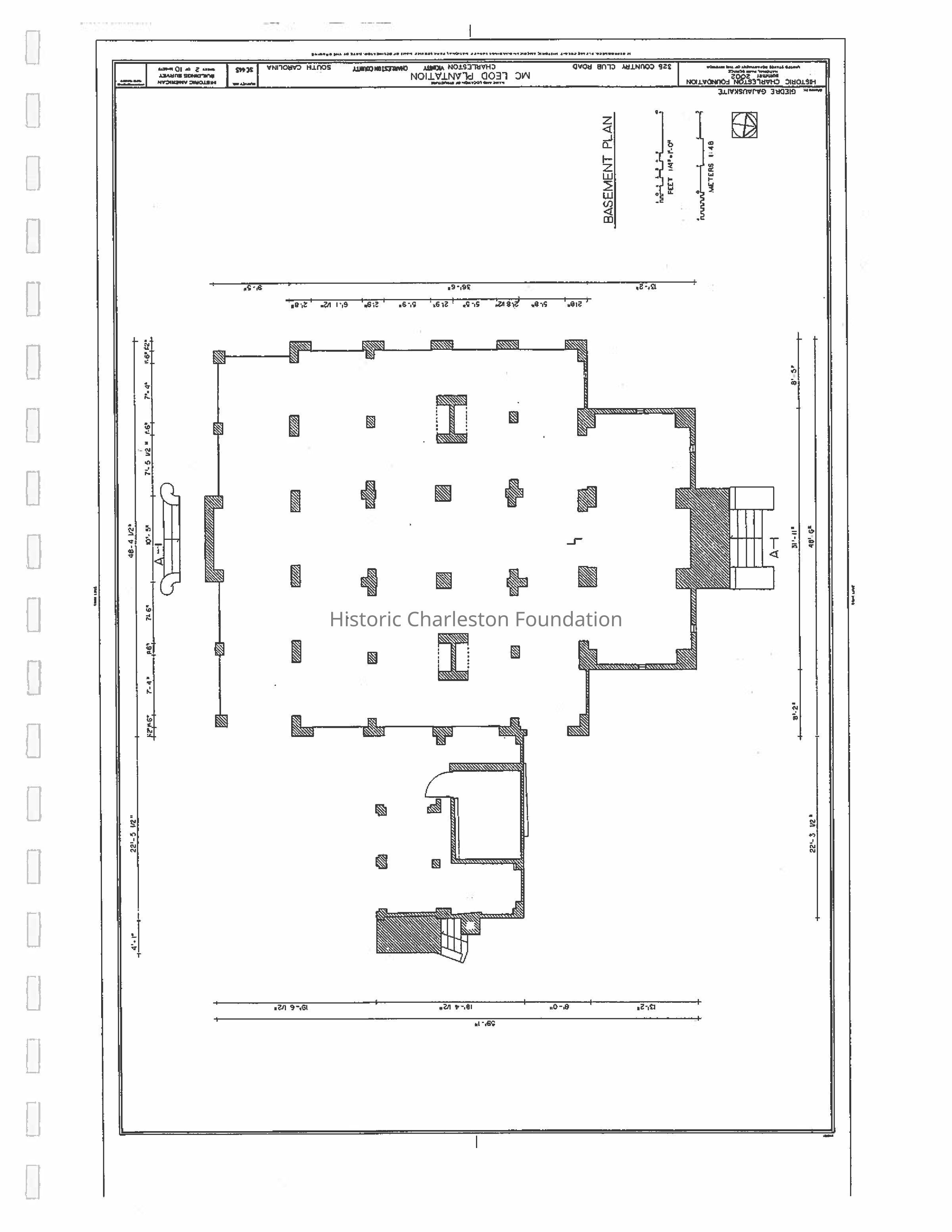
HABS drawings of McLeod Plantation (325 Country Club Road). Drawn by Giedre Gajauskaite (ICOMOS intern), summer 2002. 10 sheets: 1-Site plan and location map 2-Basement plan 3-First floor plan 4-Second floor plan 5-Attic plan 6-North elevation 7-West elevation 8-South elevation 9-East elevation 10-Section AA

Collection

Historic Charleston Foundation Property Records

Acquisition

Accession

MCLEOD.

Source or Donor

McLeod Plantation

Acquisition Method

Collected by Staff

Lexicon

Nomenclature 4.0

Nomenclature Secondary Object Term

Drawing, Architectural

Nomenclature Primary Object Term

Projection

Nomenclature Sub-Class

Graphic Documents

Nomenclature Class

Documentary Objects

Nomenclature Category

Category 08: Communication Objects

Search Terms

Plans, Site plans, Elevations, Floor plans, Measured drawings, Historic American Buildings Survey (HABS), Sections, McLeod Plantation (James Island, S.C.)--Designs and plans, Plantation buildings--South Carolina--Charleston--Designs and plans

Archive Details

Date(s) of Creation

2002

Archive Size/Extent

10 pages, 24" x 36", photocopy

Archive Notes

Date(s) Created: Summer 2002 Level of Description: Item

Location

Location

Container

Folder

Drawer

Drawer 4

Cabinet

Blueprints-Maps 4

Room

Margaretta P. Childs Archives

Building

Missroon House

Category

Permanent

Date

February 7, 2023

Relationships

Related Entries

Notes

2007.008.31, 2020.007.10, MCLEOD.01, MCLEOD.02, MCLEOD.03, MCLEOD.04.1-2, MCLEOD.05, MCLEOD.07, MCLEOD.08, MCLEOD.09, MCLEOD.10.01, MCLEOD.11.01, MCLEOD.12, MCLEOD.13, MCLEOD.14, MCLEOD.15a-b, MCLEOD.16, MCLEOD.17, MCLEOD.18a-g

General Notes

Note

Notes: Mylar set discarded 10/9/2019.

Created By

admin@catalogit.app

Create Date

August 27, 2010

Updated By

admin@catalogit.app

Update Date

February 17, 2023