Proposed Alterations [Interior]: 10 Judith Street [John Robinson House]

Name/Title

Proposed Alterations [Interior]: 10 Judith Street [John Robinson House]

Entry/Object ID

JUDITH.010.10

Scope and Content

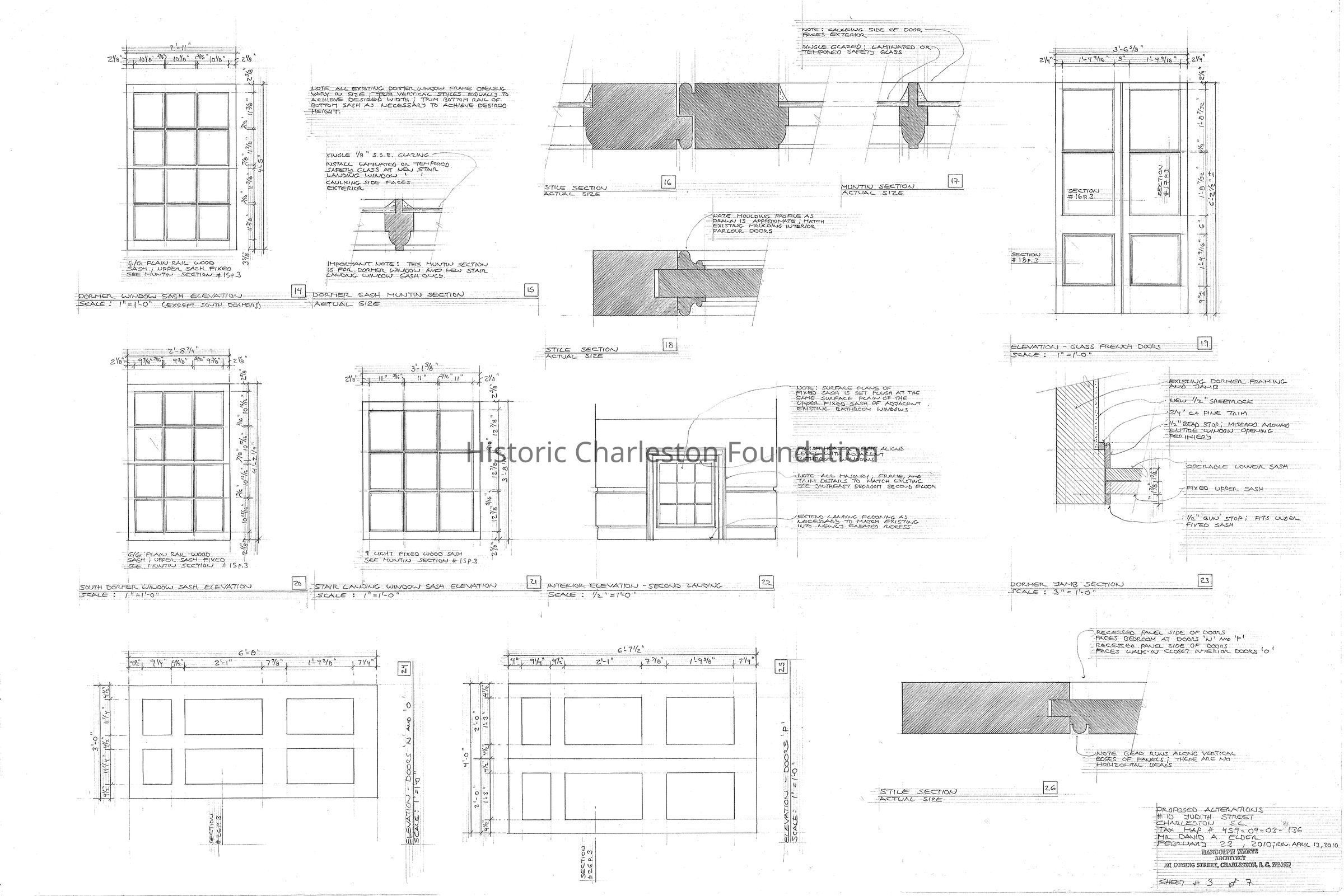
Title of Drawing: Proposed Alterations [Interior]: 10 Judith Street [John Robinson House] Date of Creation: Feb. 23, 2010, rev'd Apr. 12, 2010 Creator: Randolph Martz, architect Elevations, sections, details, plans for second floor and attic: windows, doors, dormer, jambs, interior trim, cove, bed mould, nosing, corner round, cabinets, stiles, etc. Incomplete set; missing pages 1-2 (basement, first floor). Print-out of plans (8½ x 11) in property file.

Collection

Historic Charleston Foundation Property Records

Acquisition

Accession

JUDITH.010.

Source or Donor

10 Judith Street (John Robinson House)

Acquisition Method

Collected by Staff

Lexicon

Nomenclature 4.0

Nomenclature Secondary Object Term

Drawing, Architectural

Nomenclature Primary Object Term

Projection

Nomenclature Sub-Class

Graphic Documents

Nomenclature Class

Documentary Objects

Nomenclature Category

Category 08: Communication Objects

Search Terms

Judith Street, Elevations, Sections, Plans, Historic buildings--Designs and plans

Archive Details

Creator

Martz. Randolph

Date(s) of Creation

2010

Archive Size/Extent

5 of 7 pages (PDF) [missing 2 pages]

Archive Notes

Date(s) Created: Feb. 23, 2010, rev'd Apr. 12, 2010 Level of Description: Folder

Location

Location

Building

Digital File

Category

Permanent

Date

February 7, 2023

Location

Building

Computer File

Category

Permanent

Relationships

Related Entries

Notes

JUDITH.010.01, JUDITH.010.02, JUDITH.010.03, JUDITH.010.04, JUDITH.010.05, JUDITH.010.06, JUDITH.010.07, JUDITH.010.08, JUDITH.010.09, JUDITH.010.11, JUDITH.010.12

General Notes

Note

Notes: Per Easement Manager, these alterations were completed. She is requesting missing pages from architect.

Created By

admin@catalogit.app

Create Date

December 28, 2010

Updated By

admin@catalogit.app

Update Date

February 17, 2023