93 Broad Street

Name/Title

93 Broad Street

Entry/Object ID

BROAD.093.006

Scope and Content

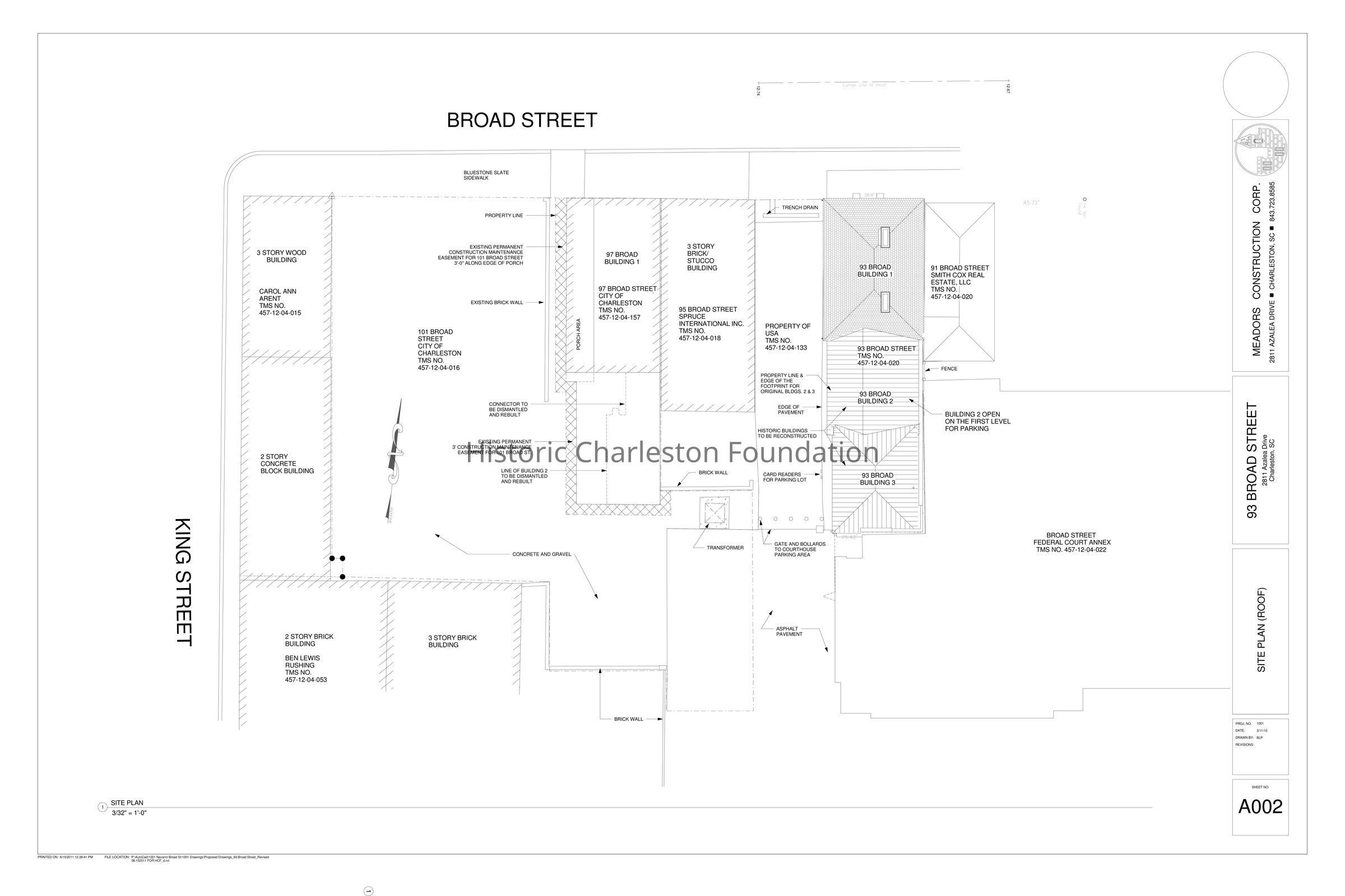
Title of drawing: 93 Broad Street Date of drawing: 3/11/2010 Name of creator: Meadors Construction, drawn by BLP, JMT A002: Site plan roof. [Drawn by BLP.] A101: Basement and first floor plan. [Drawn by JMT. Revised 3/26/2010, 4/14/2010, 4/16/2010, 4/19/2010, 4/22/2010, 4/26/2010, 6/26/2010.] A102: Second and third floor plans. [Drawn by JMT. Revised 3/26/2010, 4/14/2010, 4/15/2010, 4/19/2010, 4/29/2010, 5/3/2010, 5/24/2010, 6/26/2010.] A201: Elevation-North. [Drawn by Author. Revised 4/13/2009 (sic).] A202: Elevation-West. [Drawn by JMT. Revised 5/26/2010.] A203: Elevation-East. [Drawn by Author. Revised 4/13/2009 (sic).] Project No. 1001

Collection

Historic Charleston Foundation Property Records

Acquisition

Accession

BROAD.093.

Source or Donor

93 Broad Street (Bocquet House)

Acquisition Method

Collected by Staff

Lexicon

Nomenclature 4.0

Nomenclature Secondary Object Term

Drawing, Architectural

Nomenclature Primary Object Term

Projection

Nomenclature Sub-Class

Graphic Documents

Nomenclature Class

Documentary Objects

Nomenclature Category

Category 08: Communication Objects

Search Terms

Broad Street, Architectural drawings, Elevations, Floor plans, Measured drawings, Historic buildings--Designs and plans

Archive Details

Creator

Meadors Construction Corporation

Date(s) of Creation

2010

Archive Size/Extent

6 pages, 8.5" x 11" Photocopy

Archive Notes

Date(s) Created: 3/11/2010 (and revision dates) Finding Aids: See Finding Aid to Architectural Drawings, Maps, and Plats. See List of Properties; then locate Cabinet, Drawer, Folder. Level of Description: Item

Location

Location

Room

Margaretta P. Childs Archives

Building

Missroon House

Category

Permanent

Date

February 7, 2023

Location

Container

PF Box 14

Room

Margaretta P. Childs Archives

Building

Missroon House

Category

Permanent

Relationships

Related Entries

Notes

BROAD.085-87.001, BROAD.089-91.001, BROAD.089-91.002a-d, BROAD.089-91.003, BROAD.089-91.004, BROAD.089-91.005, BROAD.089-91.006, BROAD.089-91.007, BROAD.089-91.008, BROAD.089-91.009, BROAD.089-91.010, BROAD.093.001, BROAD.093.002, BROAD.093.003, BROAD.093.004, BROAD.093.005, BROAD.093.007, BROAD.093.008, BROAD.093.009a-i, BROAD.093.010, BROAD.093.011a-c, BROAD.093.012a-c, BROAD.097.001, BROAD.097.002, BROAD.097.003a-b, BROAD.097.004, BROAD.101.001, BROAD.GEN.023

Created By

admin@catalogit.app

Create Date

June 30, 2010

Updated By

sferguson@historiccharleston.org

Update Date

May 24, 2023