97 Broad Street [Wilkerson Residence]

Name/Title

97 Broad Street [Wilkerson Residence]

Entry/Object ID

BROAD.097.002

Scope and Content

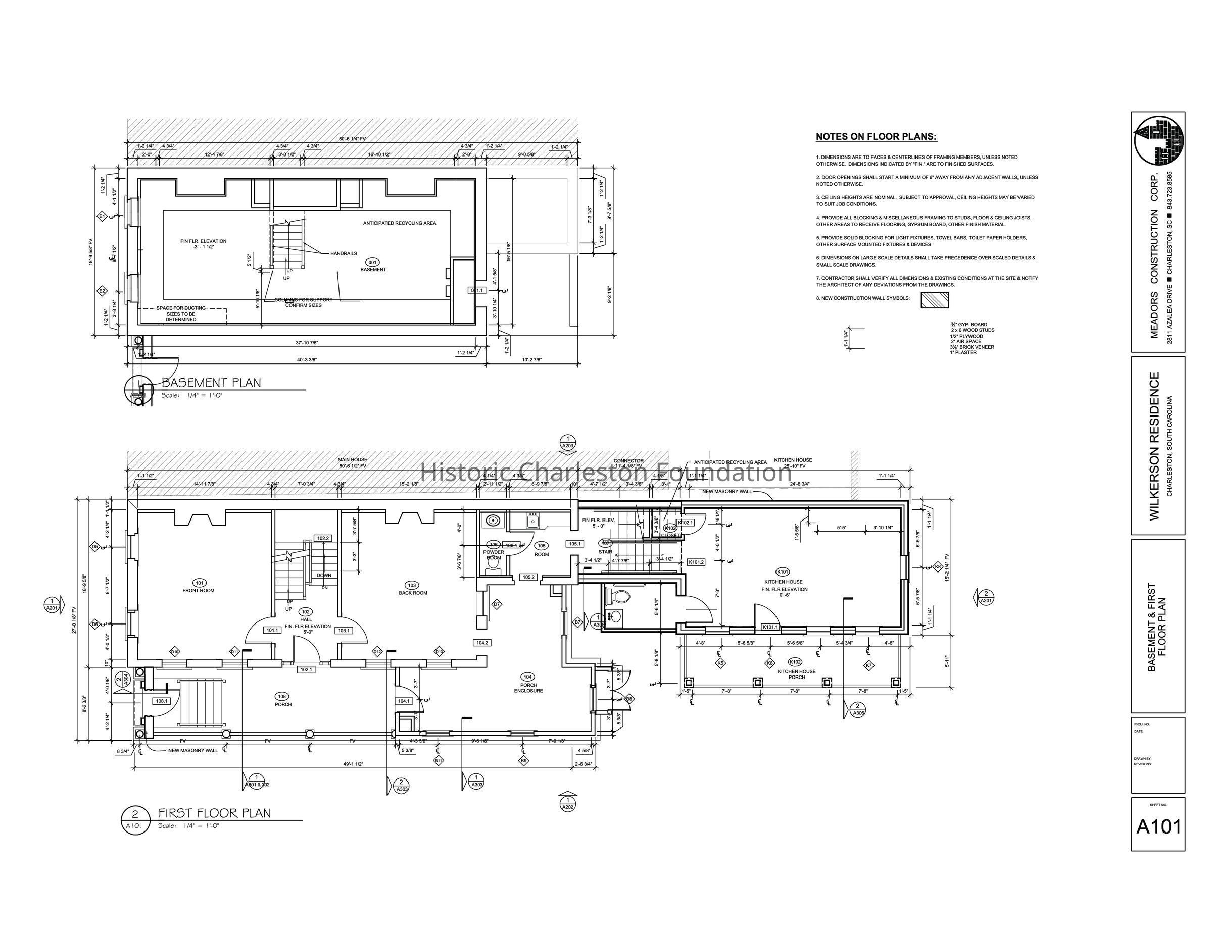
Title of drawing: 97 Broad Street [Wilkerson Residence] Date of drawing: [2008-2009] Name of creator: Meadors Construction Corp. A101: Basement and first floor plan. [No attribution.] A102: Second floor plan and attic plan. [Project no. 0516. Date: 8/23/2008, 3/9/2009, 3/30/2009, 4/1/2009, 4/10/2009, 4/15/2009. Drawn by: BF/BP/YZ. Revisions: B.A.R.] A201: North and south elevations. [Project no. 0516. Date: 8/23/2008, 3/9/2009, 3/30/2009, 4/1/2009, 4/10/2009, 4/15/2009. Drawn by: BF/BP/YZ. Revisions: B.A.R.] A202: West elevation. [Date: 10/23/2008.] A203: East elevation. [Project no. 0516. Date: 8/23/2008, 3/9/2009, 3/30/2009, 4/1/2009, 4/10/2009, 4/15/2009. Drawn by: BF/BP/YZ. Revisions: B.A.R.] K101: Connector and kitchen house floor plans. [Project no. 0516. Date: 8/23/2008, 3/9/2009, 3/30/2009, 4/1/2009, 4/10/2009, 4/15/2009. Drawn by: BF/BP/YZ. Revisions: B.A.R.]

Collection

Historic Charleston Foundation Property Records

Acquisition

Accession

BROAD.097.

Source or Donor

97 Broad Street (Mordecai Cohen Tenement)

Acquisition Method

Collected by Staff

Lexicon

Nomenclature 4.0

Nomenclature Secondary Object Term

Drawing, Architectural

Nomenclature Primary Object Term

Projection

Nomenclature Sub-Class

Graphic Documents

Nomenclature Class

Documentary Objects

Nomenclature Category

Category 08: Communication Objects

Search Terms

Broad Street, Architectural drawings, Elevations, Floor plans, Measured drawings, Historic buildings--Designs and plans

Archive Details

Creator

Meadors Construction Corporation

Archive Size/Extent

6 pages, printed out on 8.5" x 11" paper; see PDF for detail (Multimedia link)

Archive Notes

Date(s) Created: [2008-2009] Level of Description: Item

Location

Location

Shelf

Property File Shelves

Room

Margaretta P. Childs Archives

Building

Missroon House

Category

Permanent

Date

February 7, 2023

Location

Container

PF Box 14

Shelf

Prop File Shelves, Property File Shelves

Room

Margaretta P. Childs Archives

Building

Missroon House

Category

Permanent

Relationships

Related Entries

Notes

BROAD.085-87.001, BROAD.089-91.001, BROAD.089-91.002a-d, BROAD.089-91.003, BROAD.089-91.004, BROAD.089-91.005, BROAD.089-91.006, BROAD.089-91.007, BROAD.089-91.008, BROAD.089-91.009, BROAD.089-91.010, BROAD.093.001, BROAD.093.002, BROAD.093.003, BROAD.093.004, BROAD.093.005, BROAD.093.006, BROAD.093.007, BROAD.093.008, BROAD.093.009a-i, BROAD.093.010, BROAD.093.011a-c, BROAD.093.012a-c, BROAD.097.001, BROAD.097.003a-b, BROAD.097.004, BROAD.101.001, BROAD.GEN.023

Created By

admin@catalogit.app

Create Date

June 29, 2010

Updated By

admin@catalogit.app

Update Date

February 17, 2023