Restoration of Aiken-Rhett House [Window and Door Assessments]

Name/Title

Restoration of Aiken-Rhett House [Window and Door Assessments]

Entry/Object ID

ELIZABETH.048.3.14

Scope and Content

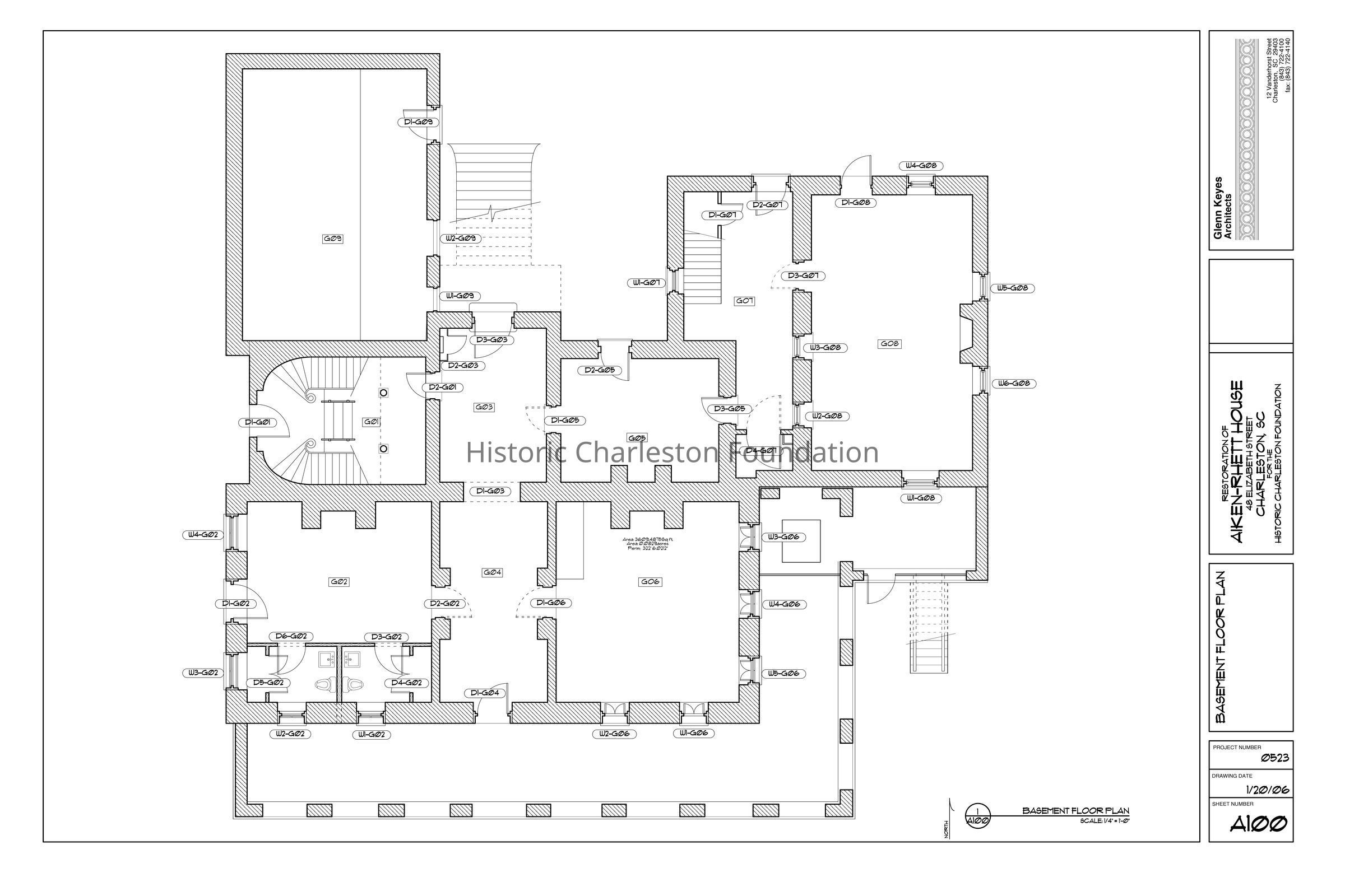
Title of drawing: Restoration of Aiken-Rhett House Date of drawing: 1/20/2006 Name of creator: Glenn Keyes Architects Project Number: 0523 Assessments: doors and windows Floor plans: basement, first, second, third floors These drawings were done prior to the repairs and stabilization work done at the Aiken-Rhett House with funding from a Save America's Treasures grant. The assessments show the condition of the windows and shutters prior to repair, and also indicate what repairs were made where and if there are replacements. The floor plans are the location key to the assessment. Accompanying documentation includes: "Shutter Inventory," "Hardware List," and "Window, Door, and Shutter Totals." Copies printed out on 11x17 paper in Folder 6, ELIZABETH.048.1.2.

Collection

Aiken-Rhett House

Acquisition

Accession

ELIZABETH.048.

Source or Donor

48 Elizabeth Street (Aiken-Rhett House)

Acquisition Method

Collected by Staff

Lexicon

Nomenclature 4.0

Nomenclature Secondary Object Term

Drawing, Architectural

Nomenclature Primary Object Term

Projection

Nomenclature Sub-Class

Graphic Documents

Nomenclature Class

Documentary Objects

Nomenclature Category

Category 08: Communication Objects

Search Terms

Architectural drawings, Floor plans, Measured drawings, Plans, Elizabeth Street, Aiken-Rhett House (Charleston, S.C.)--Designs and plans

Archive Details

Creator

Keyes, Glenn

Date(s) of Creation

2006

Archive Size/Extent

Two digital files (pdf) Floor plans: 4 pages Door/window assessments: 5 pages

Archive Notes

Date(s) Created: Jan. 20, 2006 Finding Aids: See Finding Aid to Architectural Drawings, Maps, and Plats. See List of Properties; then locate Cabinet, Drawer, Folder. Level of Description: Item

Location

Location

Building

Digital File

Category

Permanent

Date

February 7, 2023

Location

Building

Computer File

Category

Permanent

Created By

admin@catalogit.app

Create Date

October 17, 2012

Updated By

admin@catalogit.app

Update Date

February 17, 2023