Anderson House Restoration [274 Calhoun Street a/k/a Daniel Cannon House]

Name/Title

Anderson House Restoration [274 Calhoun Street a/k/a Daniel Cannon House]

Entry/Object ID

CALHOUN.274.03

Scope and Content

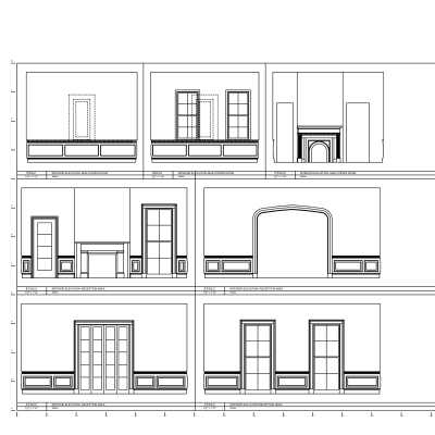
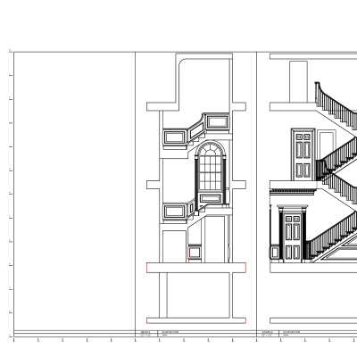
Title of drawing: Anderson House Restoration [274 Calhoun Street] Date of drawing: May 20, 2005 Name of creator: Whitney Powers, StudioAInc Architecture Site plan, ground floor plan, first floor plan, second floor plan, third floor plan, existing elevations, other elevations, building sections, three interior elevations. Drawings available on CD in Autocad (.dwg) format; need Autocad program to view. Photocopies of site plan, existing elevations, and interior elevations in property file and available on PDF (see Multimedia link). Physical Characteristics: .dwg files; need to view drawings with Autocad program.

Collection

Historic Charleston Foundation Property Records

Acquisition

Accession

CALHOUN.274.

Source or Donor

274 Calhoun Street (Daniel Cannon House)

Acquisition Method

Collected by Staff

Lexicon

Nomenclature 4.0

Nomenclature Secondary Object Term

Drawing, Architectural

Nomenclature Primary Object Term

Projection

Nomenclature Sub-Class

Graphic Documents

Nomenclature Class

Documentary Objects

Nomenclature Category

Category 08: Communication Objects

Search Terms

Architectural drawings, Floor plans, Calhoun Street, Elevations, Site plans, Sections, Historic buildings--Designs and plans

Archive Details

Date(s) of Creation

May 20, 2005

Archive Size/Extent

11 pages (digital)

Archive Notes

Date(s): 1990 Level of Description: Item

Location

Location

Shelf

Property File Shelves

Room

Margaretta P. Childs Archives

Building

Missroon House

Category

Permanent

Date

February 7, 2023

Location

Container

PF Box 18

Shelf

Prop File Shelves, Property File Shelves

Room

Margaretta P. Childs Archives

Building

Missroon House

Category

Permanent

Relationships

Related Entries

Notes

2014.019.3, 2016.021.05, CALHOUN.274.01, CALHOUN.274.02, CALHOUN.274.04

Copyright

Notes

Must get permission from architect.

General Notes

Note

Notes: Archivist was only able to convert five of the drawings to pdf; need to view remaining drawings using Autocad program which is on one of HCF's intern computers.

Created By

admin@catalogit.app

Create Date

June 26, 2007

Updated By

admin@catalogit.app

Update Date

February 17, 2023