Architectural Survey: Neighborhood Services Area

Name/Title

Architectural Survey: Neighborhood Services Area

Entry/Object ID

2008.002.0021

Description

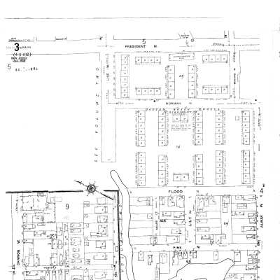
Architectural survey of the Gadsden Green area conducted to identify the buildings and their architectural style, record the buildings by photographs, research dates of construction, and look into any historical importance of buildings in the area. Provides description of the distinct architectural style with examples (by street address): Freedman's Houses (a/k/a Freedman's Cottages), Bungalow Style, Rectangular Style, and Classic Box Style. Includes two maps. The Gadsden Green area is bounded by King Street to Hagood Avenue east to west, and the Crosstown Highway through to Congress Street south to north. [14] leaves : ill., 2 maps (in pocket) ; 28 cm. (spiralbound)

Collection

Pamphlets, Guidebooks, Reports, Theses/Dissertations

Acquisition

Accession

2008.002.

Source or Donor

New Library Catalog Records (2008)

Acquisition Method

Found in Collection

Lexicon

Nomenclature 4.0

Nomenclature Primary Object Term

Book

Nomenclature Sub-Class

Other Documents

Nomenclature Class

Documentary Objects

Nomenclature Category

Category 08: Communication Objects

Search Terms

Fine arts, Architecture, Freedman's cottage, Gadsden Green, West Side, Architecture--South Carolina--Charleston, Historic buildings--South Carolina--Charleston, Charleston (S.C.)--Buildings, structures, etc., African Americans--Housing, Vernacular architecture--South Carolina--Charleston

Other Names and Numbers

Other Numbers

Number Type

Other Number

Other Number

P159

Book Details

Author

City of Charleston Dept. of Planning and Urban Development

Publisher

City of Charleston Dept. of Planning and Urban Development

Place Published

City

Charleston

State/Province

South Carolina

Country

United States of America

Date Published

1979

Call No.

NA735 .C35 A73 1979

Notes

Copy No.: 0

Location

Location

Shelf

Books-Pamphlets

Room

Margaretta P. Childs Archives

Building

Missroon House

Category

Permanent

Date

February 7, 2023

Relationships

Related Entries

Notes

2007.001.10.1, 2007.001.10.2, 2007.001.10.3, 2008.002.0073

Related Publications

Notes

1951 Sanborn Map and photos of Norman Street and Gadsden Green Housing Project from 1941 and 1942 City Yearbooks on Media tab

General Notes

Note

Notes: Includes bibliographical references (p. [13]). Includes sample Architectural Inventory Form. Folded survey maps in pocket.

Created By

admin@catalogit.app

Create Date

March 13, 2008

Updated By

rowan@catalogit.app

Update Date

March 30, 2023