A Rehabilitation of 36 Murray Boulevard [front porch and hardscaping]

Name/Title

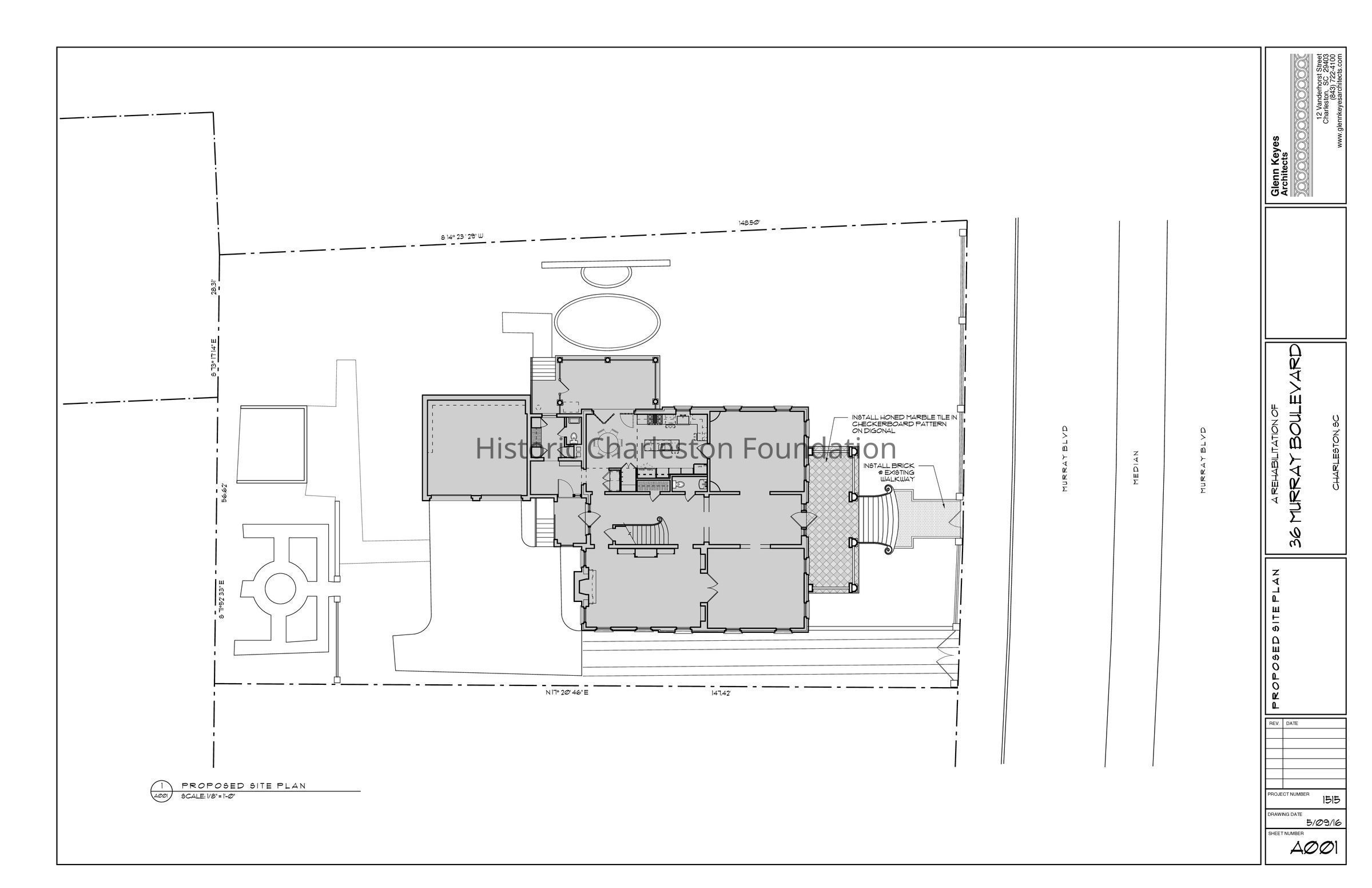
A Rehabilitation of 36 Murray Boulevard [front porch and hardscaping]

Entry/Object ID

MURRAY.036.6

Scope and Content

Title of drawing: A Rehabilitation of 36 Murray Boulevard Date of drawings: May 9, 2016 Name of creator: Glenn Keyes Architects Page 1 [A001]: Proposed site plan Page 2 [P-1]: Existing condition photos (Murray Boulevard elevation, southeast perspective, porch elevation) Page 3 [P-2]: Existing condition photos (back porch, Murray Boulevard elevation) Page 4 [P-3]: Existing condition photos (existing flagstone walkway, detail of flagstone porch, existing flagstone porch) Page 5 [A101]: First floor plan Page 6 [D201]: Demolition east elevation Page 7 [A201]: Proposed east elevation Project no. 1515

Collection

Historic Charleston Foundation Property Records

Acquisition

Accession

MURRAY.036.

Source or Donor

36 Murray Boulevard (Archibald Baker Jr. House)

Acquisition Method

Collected by Staff

Lexicon

Nomenclature 4.0

Nomenclature Secondary Object Term

Drawing, Architectural

Nomenclature Primary Object Term

Projection

Nomenclature Sub-Class

Graphic Documents

Nomenclature Class

Documentary Objects

Nomenclature Category

Category 08: Communication Objects

Search Terms

Elevations, Murray Boulevard, Floor plans, Easement Property, Dwellings--South Carolina--Charleston--Designs and plans

Archive Details

Creator

Keyes, Glenn

Date(s) of Creation

May 9, 2016

Archive Size/Extent

7 pages, 11" x 17" (photocopy) Full-size PDF also available

Archive Notes

Date(s): 2016 Finding Aids: See Finding Aid to Architectural Drawings, Maps, and Plats. See List of Properties; then locate Cabinet, Drawer, Folder. Level of Description: Item

Location

Location

Drawer

Drawer 3

Cabinet

Blueprints-Maps 2

Room

Margaretta P. Childs Archives

Building

Missroon House

Category

Permanent

Date

February 7, 2023

Relationships

Related Entries

Notes

2015.027.1, 2015.027.2, 2015.027.3a-e, MURRAY.036.1, MURRAY.036.2a-b, MURRAY.036.3, MURRAY.036.4, MURRAY.036.5, MURRAY.036.7

General Notes

Note

Notes: Proposed alterations were completed, per April Wood.

Created By

admin@catalogit.app

Create Date

April 2, 2019

Updated By

admin@catalogit.app

Update Date

February 17, 2023