Isaac Jacobs Mikell House, Altschul Residence, 94 Rutledge Avenue [Floor Plans]

Name/Title

Isaac Jacobs Mikell House, Altschul Residence, 94 Rutledge Avenue [Floor Plans]

Entry/Object ID

RUTLEDGE.094.8

Scope and Content

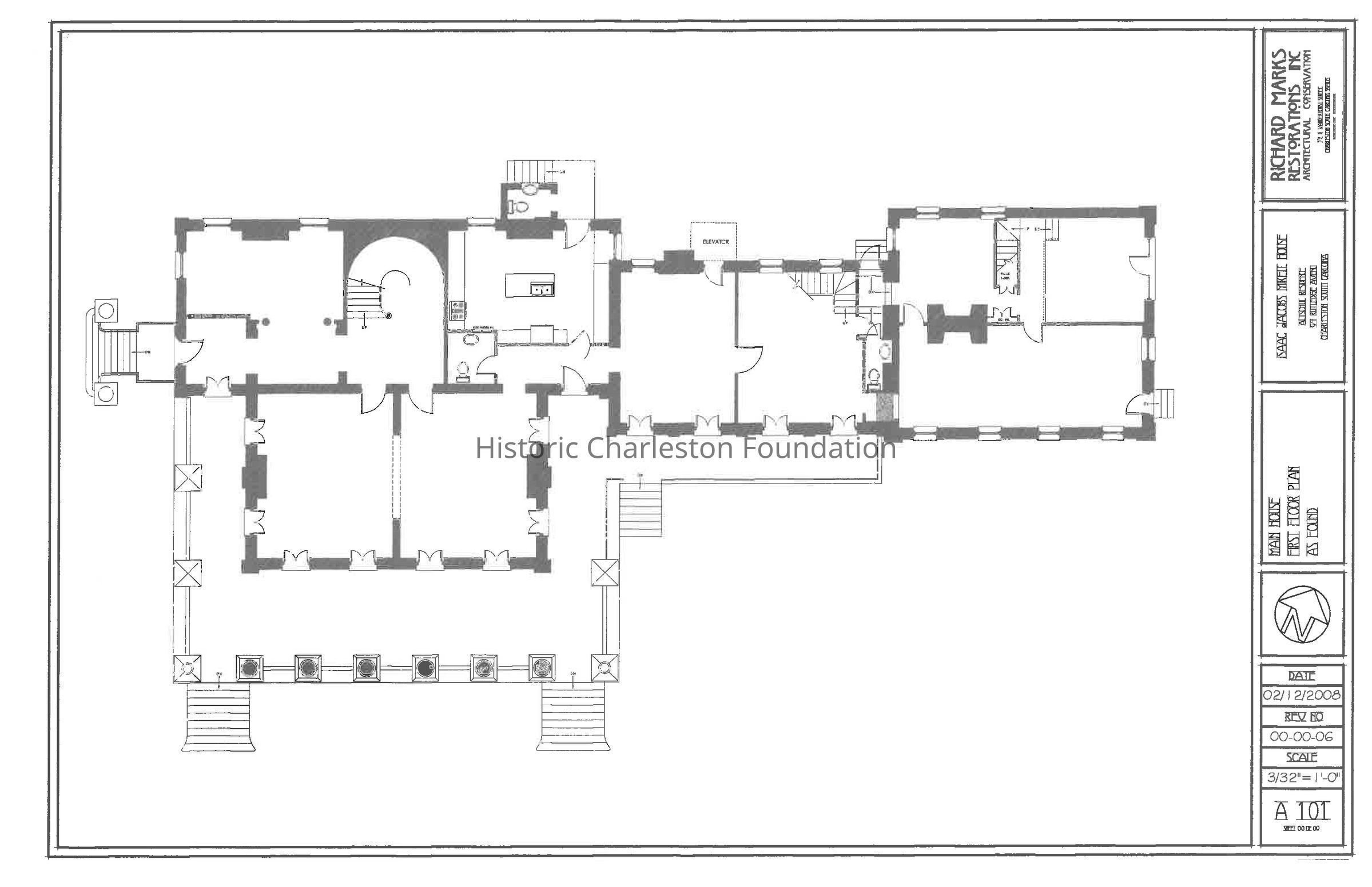
Title of drawing: Isaac Jacobs Mikell House, Altschul Residence, 94 Rutledge Avenue Date of drawing: Feb. 2, 2008 Name of creator: Richard Marks Restorations Sheet A101: Main House First Floor Plan As Found Sheet A102: Main House Second Floor Plan As Found Scale: 3/32" x 1'0"

Collection

Historic Charleston Foundation Property Records

Acquisition

Accession

RUTLEDGE.094.

Source or Donor

94 Rutledge Avenue (Isaac Jenkins Mikell House)

Acquisition Method

Collected by Staff

Lexicon

Nomenclature 4.0

Nomenclature Secondary Object Term

Drawing, Architectural

Nomenclature Primary Object Term

Projection

Nomenclature Sub-Class

Graphic Documents

Nomenclature Class

Documentary Objects

Nomenclature Category

Category 08: Communication Objects

Search Terms

Architectural drawings, Floor plans, Easement Property, Rutledge Avenue, Historic buildings--South Carolina--Charleston--Designs and plans

Archive Details

Creator

Marks, Richard D.

Date(s) of Creation

Feb 2, 2008

Archive Size/Extent

2 p., 11" x 17" (photocopy)

Archive Notes

Date(s): 2008 Finding Aids: See Finding Aid to Architectural Drawings, Maps, and Plats. See List of Properties; then locate Cabinet, Drawer, Folder. Level of Description: Item

Location

Location

Drawer

Drawer 4

Cabinet

Blueprints-Maps 2

Room

Margaretta P. Childs Archives

Building

Missroon House

Category

Permanent

Date

February 7, 2023

Created By

admin@catalogit.app

Create Date

March 12, 2015

Updated By

sduffy@historiccharleston.org

Update Date

November 14, 2025