Canadian National Central Region Northern Ontario District: Capreol District Ruel Subdivision Plans Showing Existing Building, 1960

Name/Title

Canadian National Central Region Northern Ontario District: Capreol District Ruel Subdivision Plans Showing Existing Building, 1960

Entry/Object ID

2017.38.09

Description

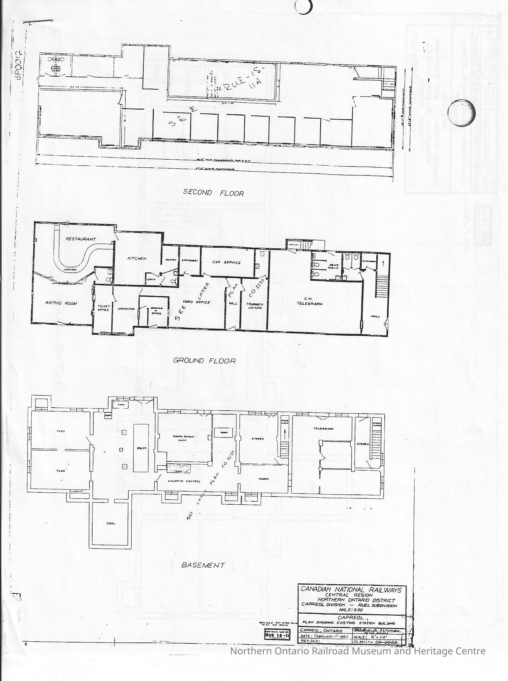
Plans published by Canadian National showing the existing station building in Capreol as of 1960. It is in the central region, northern Ontario district and it is a ruel subdivision in the Capreol district. The plans show the second floor, ground floor and basement layouts for the station building. The first page shows all three and the following two pages show each individual at a larger print. The plans were drawn on February 1st, 1960 at a scale of 1/4" = 1'-0". It was originally plan number Rue 15-11, later CD 22237. Distinguishing Features: none

Context

Copy of an original document, copy of the original plans showing the station layout for the Capreol division's station as of 1960. Canadian National was created following the end of the First World War, by combining five lines which were financially troubled. It soon became the largest railway in the country. Canadian National Railways was founded in 1919 as a combination of several railways that had become bankrupt and were being ran by the Canadian Government Railways, its primary service was freight but also operated passenger service until 1978 until it was absorbed by VIA rail. The Canadian National Railways was created by the Government of Canada as a means to fund the failing railway corporations including: Intercolonial Railway of Canada, National Transcontinental Railway, Prince Edward Island Railway, and Hudson's Bay Railway.

Collection

Library Archive

Category

Canadian National, Capreol

Acquisition

Source (if not Accessioned)

unknown

Notes

Date Acquired: unknown Method of Acquisition: Donation (?)

Lexicon

Legacy Lexicon

Object Name

Blueprints

Class

Reproduction

Category

Primary Source

Publication Details

Author

Canadian National

Place Published

* Untyped Place Published

Capreol, Ontario

City

Greater Sudbury

Country

Canada

Continent

North America

State/Province

Ontario

Date Published

Feb 1, 1960

ISBN

n/a

Notes

Materials: Paper, ink, staple

Inscription/Signature/Marks

Notes

"Canadian National Railways Central Region Northern Ontario District Capreol Division - Ruel Subdivision Mile: 0.00" "Capreol plan showing existing station building" "Capreol, Ontario" "February 1st,1960" "A. E. Monaghan division engineer" "1/4" = 1'-0"" "No. CD 22337" "See later plan CD 2237" "Revised att 5,1968 MLM see revise plan RVB-B-11B" "New NOA Plan No. RUE 15-11" "

Other Names and Numbers

Other Numbers

Number Type

Item Number

Other Number

30744

Dimensions

Height

11 in

Width

8-1/2 in

Parts

Count: none

Location

Location

Box

Canadian National Box #2

Room

Dale Wilson Reference Library

Building

NORMHC Heritage Centre, Northern Ontario Railroad Museum and Heritage Centre

* Untyped Location

Capreol, Ontario

Date

March 10, 2022

Condition

Notes

Good condition

Created By

admin@catalogit.app

Create Date

March 14, 2022

Updated By

normhclibrary@gmail.com

Update Date

April 20, 2022