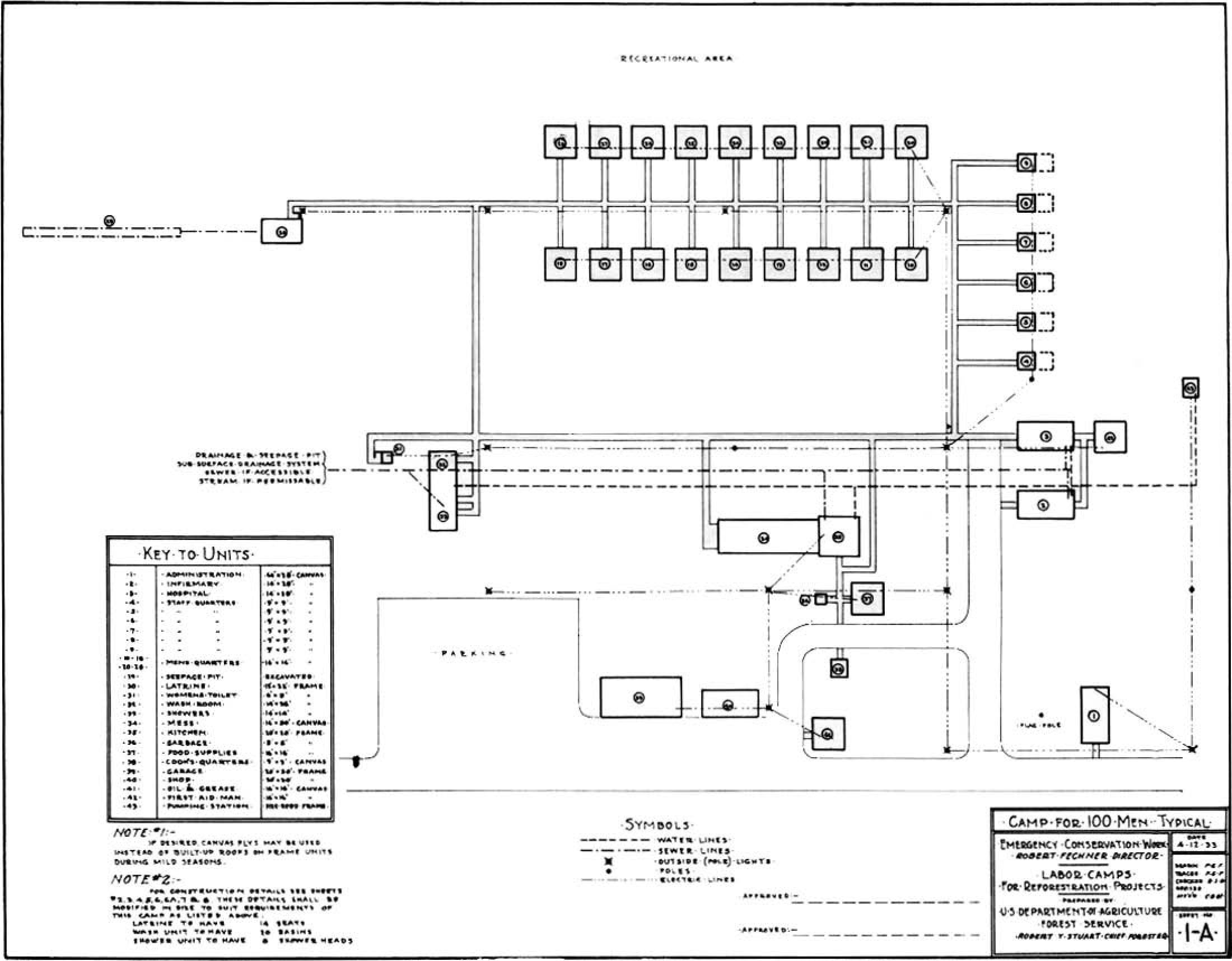
CCC Camp for 100

CCC Camp Map

CCC Camp Map

Name/Title

CCC Camp for 100

Entry/Object ID

2020.1.1

Tags

CCC, Public, Map, Civilian Conservation Corps

Description

a map of a typical CCC camp; planned for 100 men; divided into 3 sections: CCC, Labor Camp for reforestation projects, and U.S. Department of Agriculture (Forest Service); had administration building, infirmary, hospital, staff quarters, men's quarters, latrine, women's' toilet, sewers, mess hall, kitchen, barracks, food supplies, garage, shop, and a few buildings

Collection

Southern Forest Heritage Museum

Acquisition

Accession

2020.1

Acquisition Method

Research

Credit Line

*title of entry*, Southern Forest Heritage Museum Collection, *Accession Number*, *Exhibition Title (if it's in an exhibit)*, Southern Forest Heritage Museum, Long Leaf, LA.

Map Details

Date Published

circa 1930

Date Printed

circa 1930

Publication Language

English

Other Names and Numbers

Other Name

cc camp layout

Other Numbers

Number Type

Drive

Other Number

SFHM.SFHM.2020.Drive.001

Parts

Count

1