HUB
Collections
Classifications
About
App
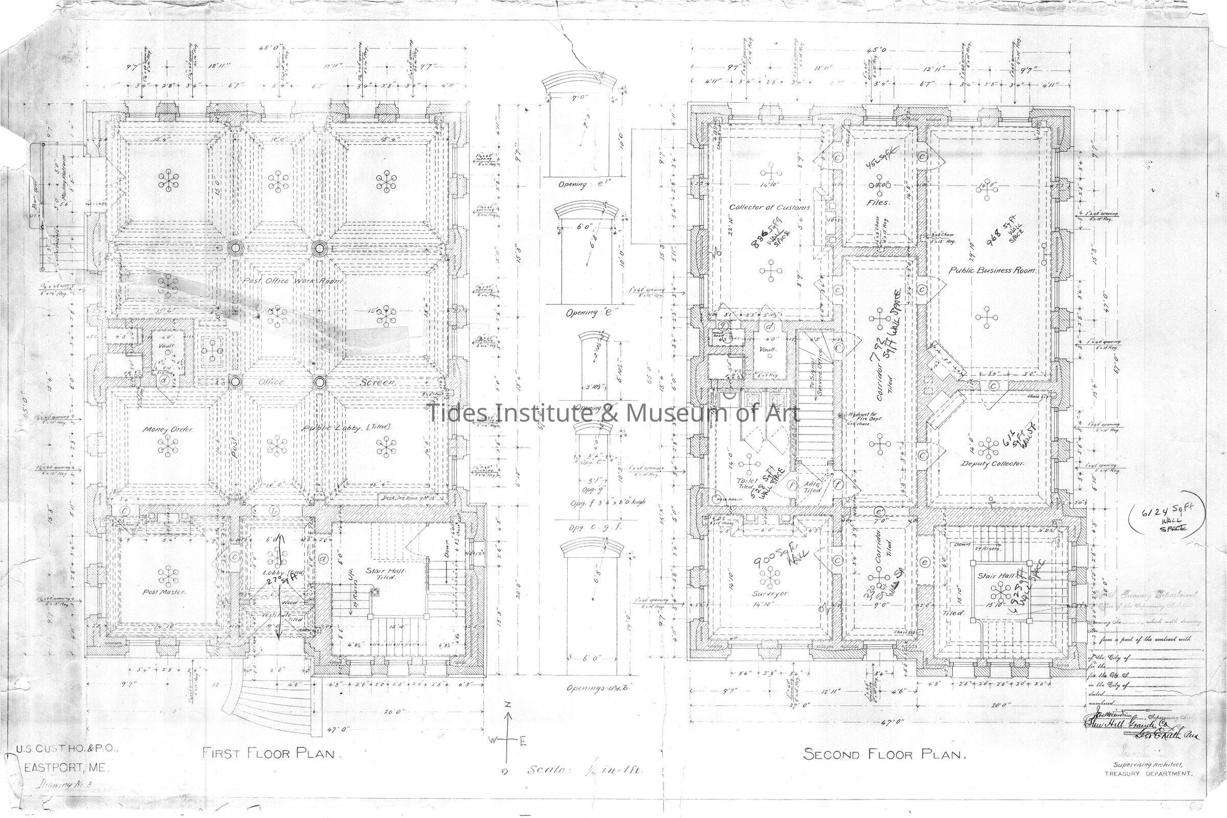
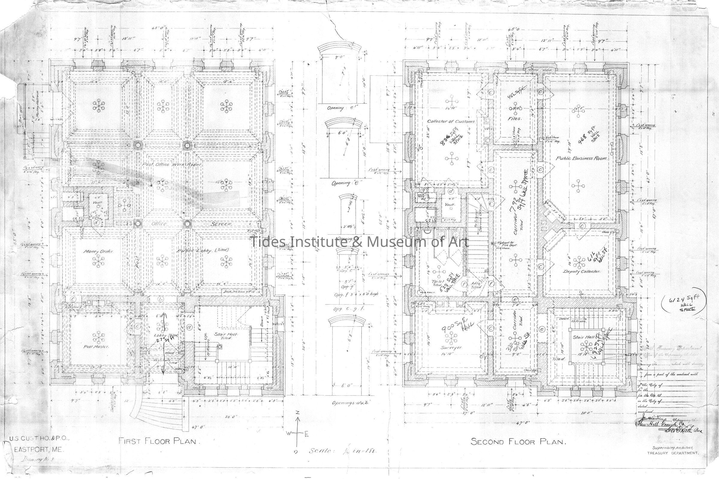
U.S. Custom House & Post Office | Eastport, Maine | Drawing No. 3
Publication
-
Tides Institute & Museum of Art
Name/Title
U.S. Custom House & Post Office | Eastport, Maine | Drawing No. 3