HUB
Collections
Classifications
About
App
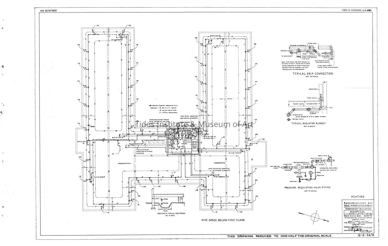
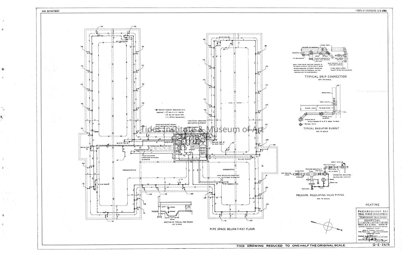
Passamaquoddy Bay Tidal Power Development | Temporary Buildings | Hospital | Pipe Space Below First Floor | Q-E 24/8
Publication
-
Tides Institute & Museum of Art
Name/Title
Passamaquoddy Bay Tidal Power Development | Temporary Buildings | Hospital | Pipe Space Below First Floor | Q-E 24/8