HUB
Collections
Classifications
About
App
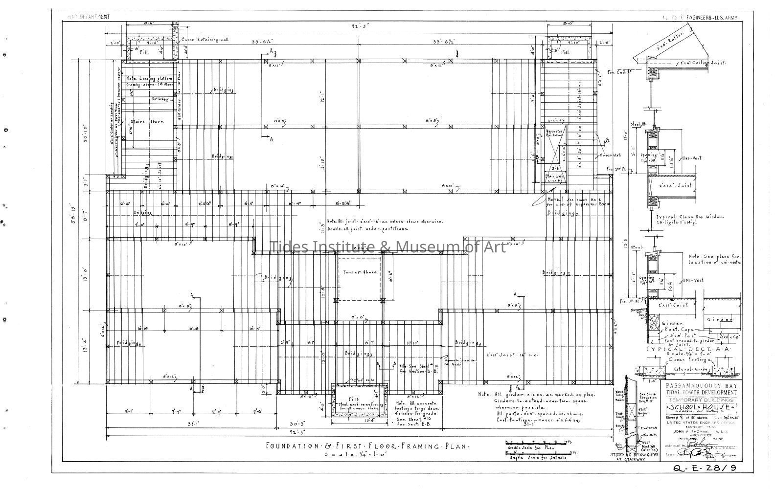
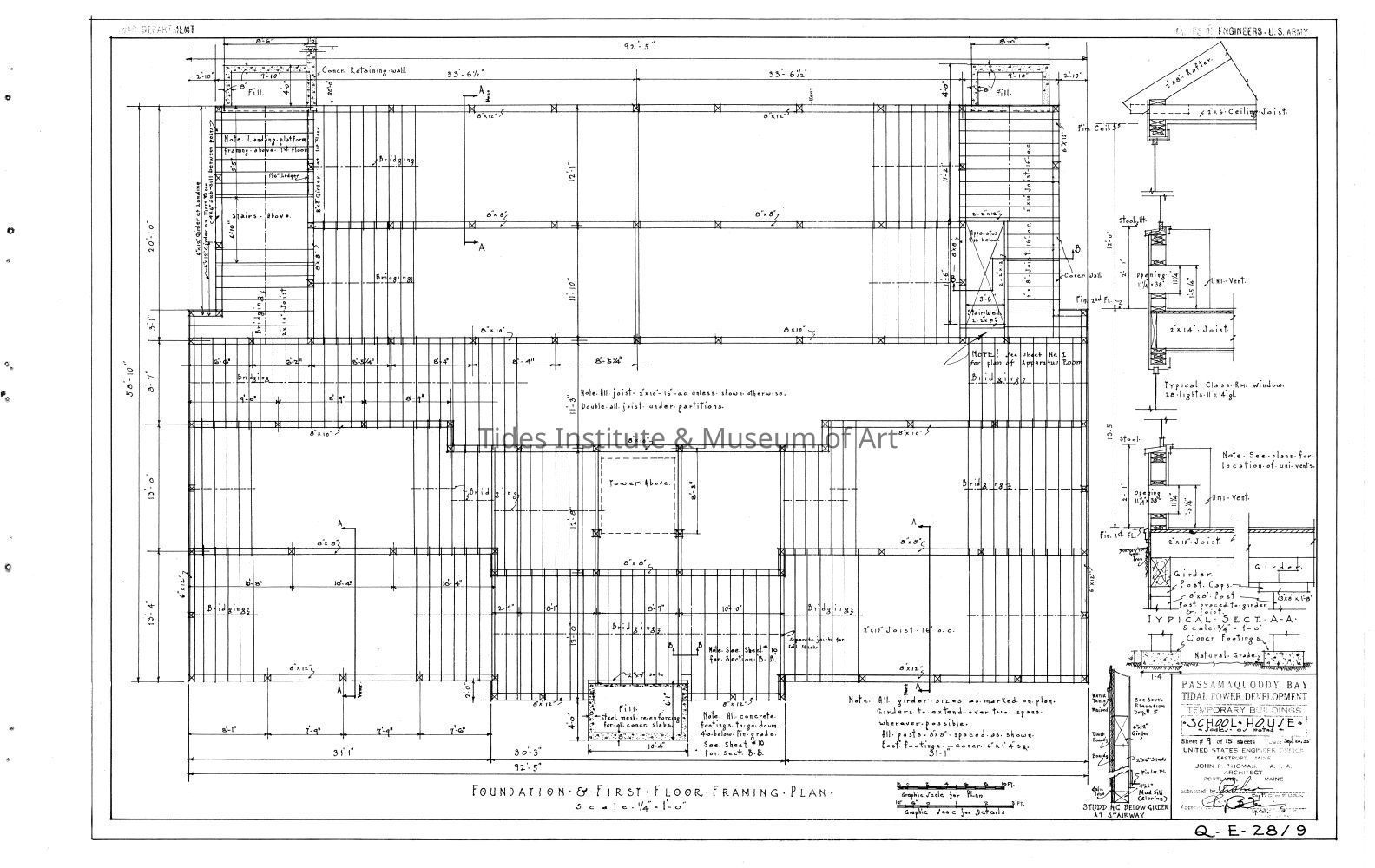
Passamaquoddy Bay Tidal Power Development | Temporary Buildings | School-House | Foundation & First Floor Framing Plan | Q-E 28/9
Publication
-
Tides Institute & Museum of Art
Name/Title
Passamaquoddy Bay Tidal Power Development | Temporary Buildings | School-House | Foundation & First Floor Framing Plan | Q-E 28/9