HUB
Collections
Classifications
About
App
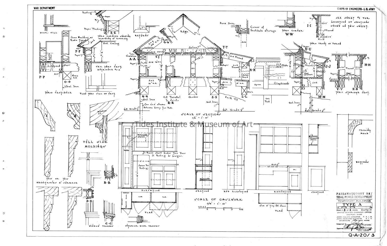
Passamaquoddy Bay Tidal Power Development | Temporary Buildings | Type A | Q-A 20/3
Publication
-
Tides Institute & Museum of Art
Name/Title
Passamaquoddy Bay Tidal Power Development | Temporary Buildings | Type A | Q-A 20/3