HUB
Collections
Classifications
About
App
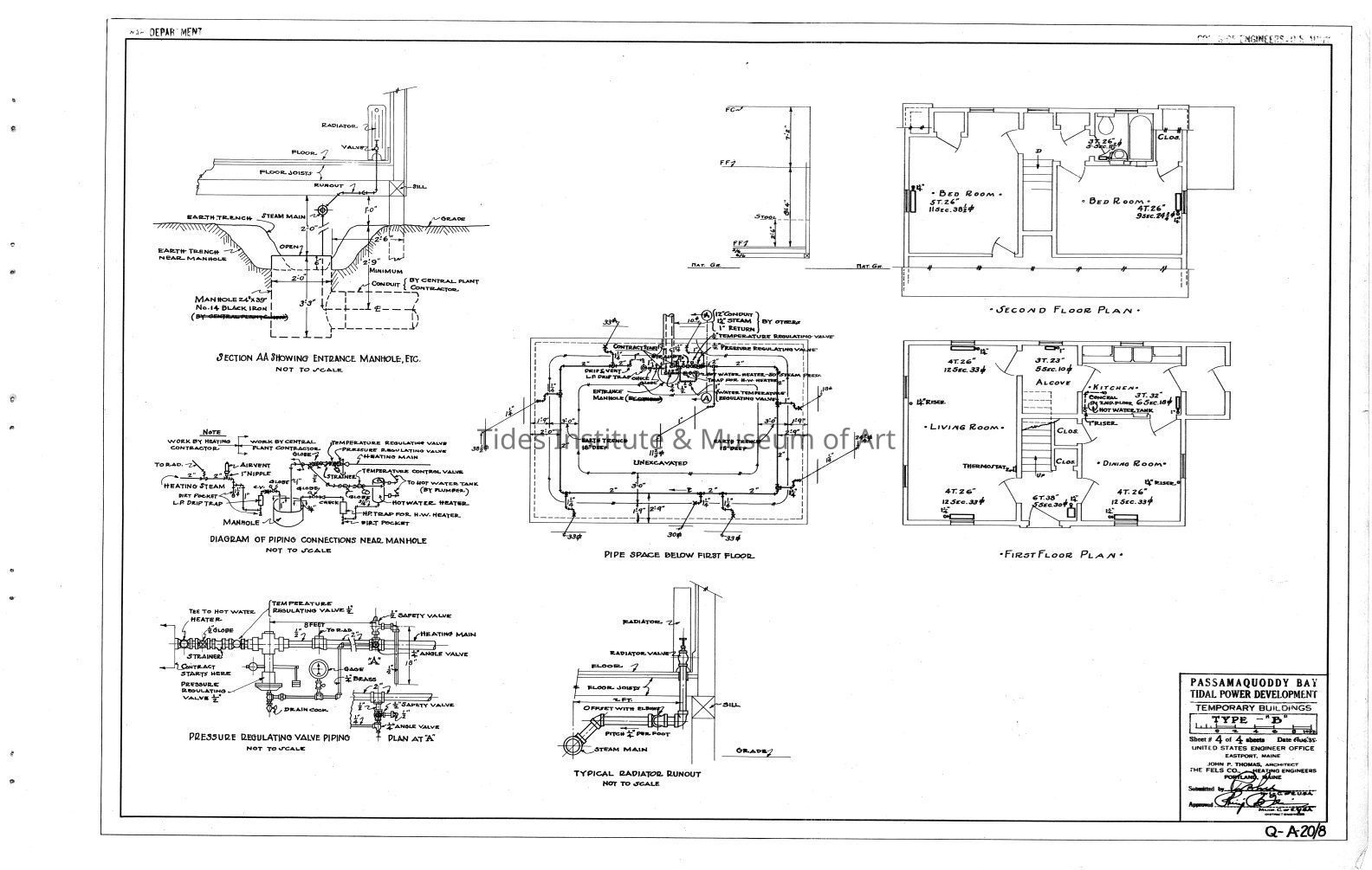
Passamaquoddy Bay Tidal Power Development | Temporary Buildings | Type B | Q-A 20/8
Publication
-
Tides Institute & Museum of Art
Name/Title
Passamaquoddy Bay Tidal Power Development | Temporary Buildings | Type B | Q-A 20/8