HUB
Collections
Classifications
About
App
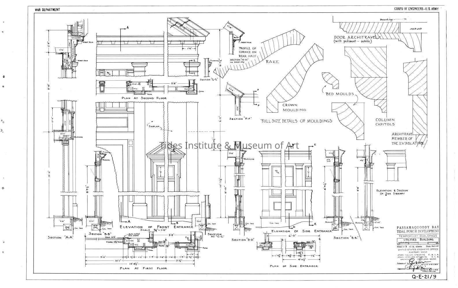
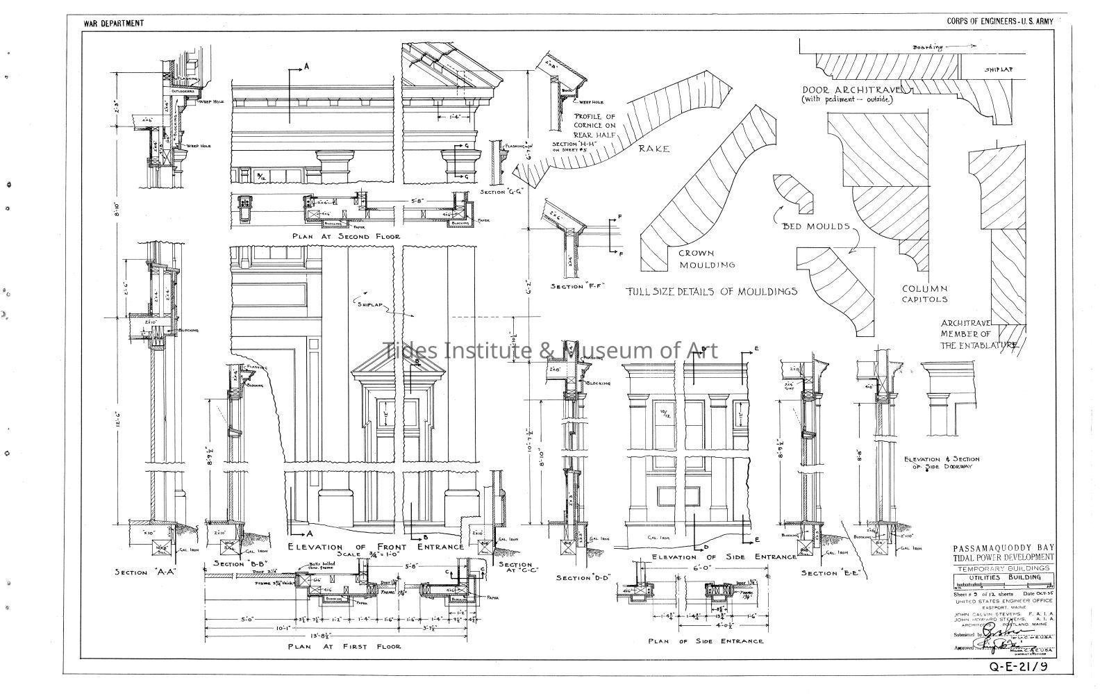
Passamaquoddy Bay Tidal Power Development | Temporary Buildings | Utilities Building | Construction Details | Q-E 21/9
Publication
-
Tides Institute & Museum of Art
Name/Title
Passamaquoddy Bay Tidal Power Development | Temporary Buildings | Utilities Building | Construction Details | Q-E 21/9