Waupun Wisconsin Historic Tour Brochure

Historic Architecture Brochure

Historic Architecture Brochure

Name/Title

Waupun Wisconsin Historic Tour Brochure

Entry/Object ID

2009.0500.0629

Description

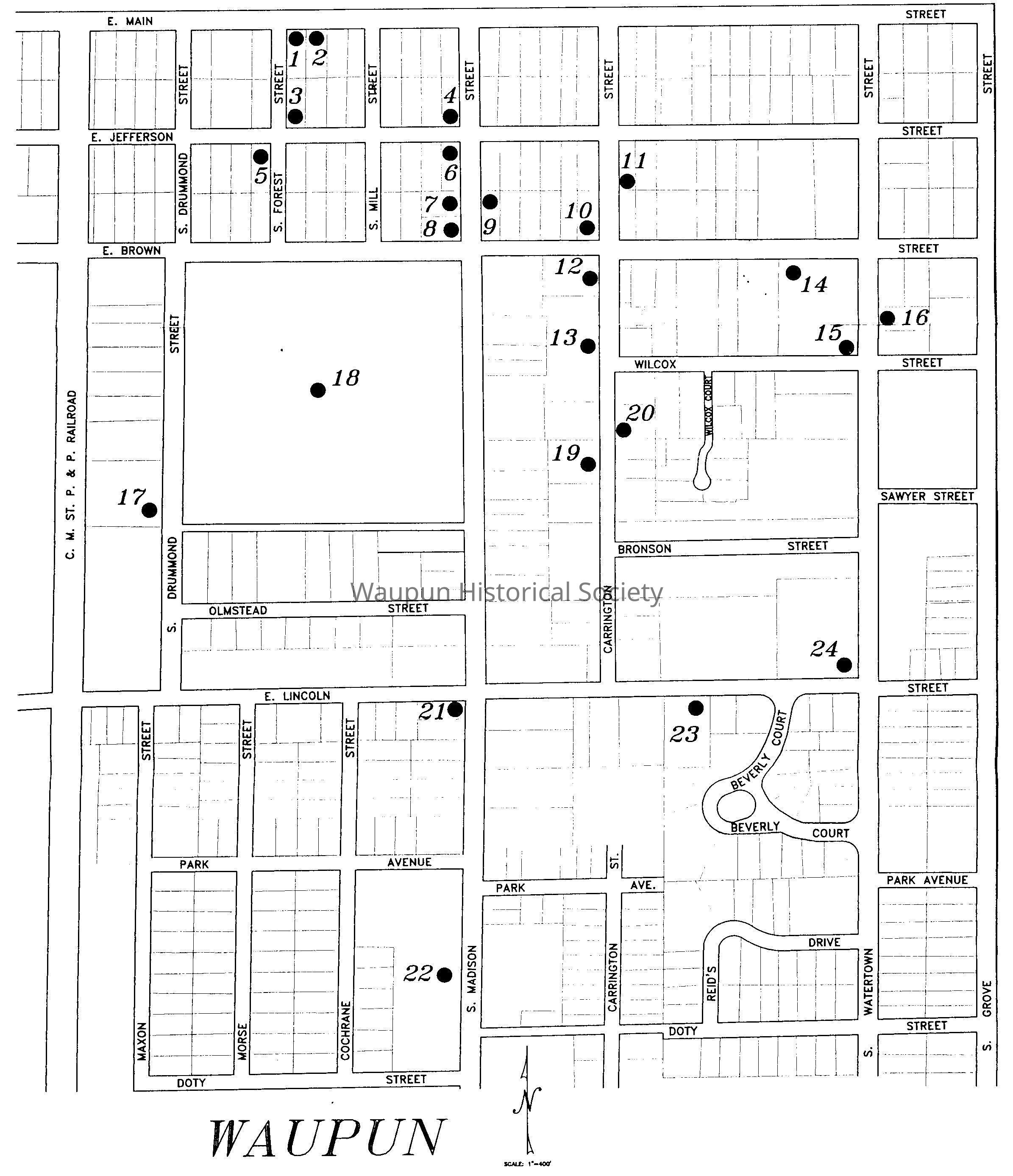
Brochure of the Heritage tour of historic architecture produced by the Dodge County Planninbg and Development Department in 1994.

Acquisition

Accession

2009.0500

Source or Donor

Found in collection.

Acquisition Method

Bequest,Collected by