Architectural Plan of Worker Housing

Name/Title

Architectural Plan of Worker Housing

Entry/Object ID

2022.4.20

Description

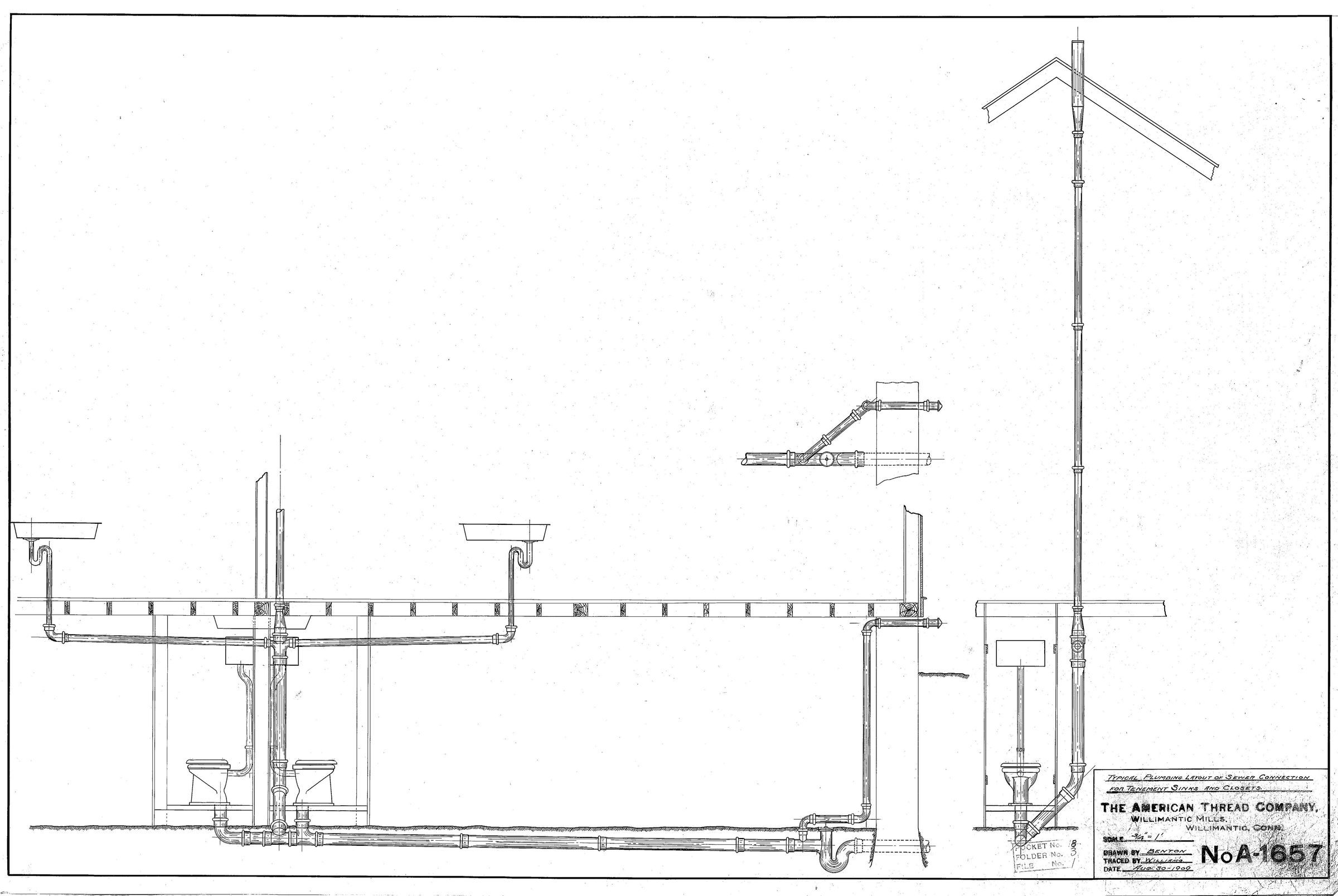
Engineering plan of typical plumbing layout of sewer construction for tenement sinks and closets (i.e., bathrooms), American Thread Company, Willimantic Mills, Willimantic, CT. Scale: 3/4 in. = 1 ft. Note: When the Willimantic Linen Company (predecessor to the American Thread Company) built its worker tenements in the 19th century, they lacked indoor plumbing. The American Thread Company added plumbing later.

Collection

American Thread Company Collection

Lexicon

Nomenclature 4.0

Nomenclature Secondary Object Term

Plan

Nomenclature Primary Object Term

Projection

Nomenclature Sub-Class

Graphic Documents

Nomenclature Class

Documentary Objects

Nomenclature Category

Category 08: Communication Objects

Publication Details

Publication Type

Ephemera

Author

American Thread Company

Illustrator

Benton

Date Published

Aug 30, 1909

Publication Language

English

Other Names and Numbers

Other Number

A-1657

Location

Location

Cabinet

Map Cases

Room

Dunham Hall Library Reading Room

* Untyped Location

Main Museum Building

Date

July 13, 2022

Provenance

Provenance Detail

American Thread Company, Engineering Department

Copyright

Copyright Holder

Public Domain

Created By

Eves, J.

Create Date

July 13, 2022

Updated By

Eves, J.

Update Date

August 10, 2022