Architectural Plan of Elms Boarding House

Name/Title

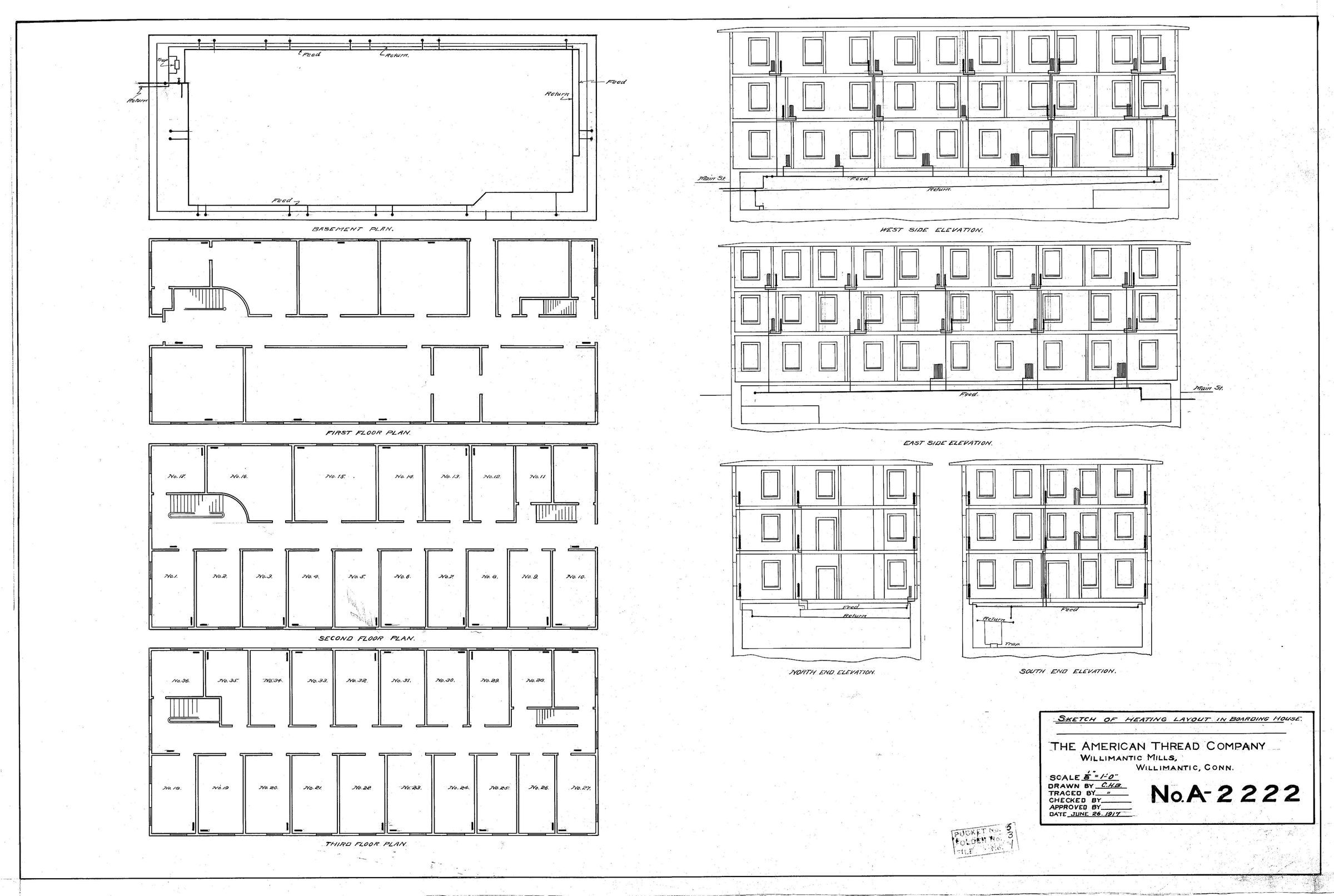
Architectural Plan of Elms Boarding House

Entry/Object ID

2022.4.32

Description

Sketch of heating layout in Elms boarding house. American Thread Company, Willimantic Mills, Willimantic, CT. Scale: 1/8 in. = 1 ft.

Collection

American Thread Company Collection

Lexicon

Nomenclature 4.0

Nomenclature Tertiary Object Term

Plan, Floor

Nomenclature Secondary Object Term

Plan

Nomenclature Primary Object Term

Projection

Nomenclature Sub-Class

Graphic Documents

Nomenclature Class

Documentary Objects

Nomenclature Category

Category 08: Communication Objects

Publication Details

Publication Type

Ephemera

Author

American Thread Company

Illustrator

C.H.B.

Date Published

Jun 26, 1917

Publication Language

English

Other Names and Numbers

Other Number

A-2222

Location

Location

Cabinet

Map Cases

Room

Dunham Hall Library Reading Room

* Untyped Location

Main Museum Building

Date

July 17, 2022

Provenance

Provenance Detail

American Thread Company, Engineering Department

Copyright

Copyright Holder

Public Domain

Created By

Eves, J.

Create Date

July 17, 2022

Updated By

Eves, J.

Update Date

August 10, 2022