Architectural Plans of Worker Row Houses

Name/Title

Architectural Plans of Worker Row Houses

Entry/Object ID

2022.4.21

Description

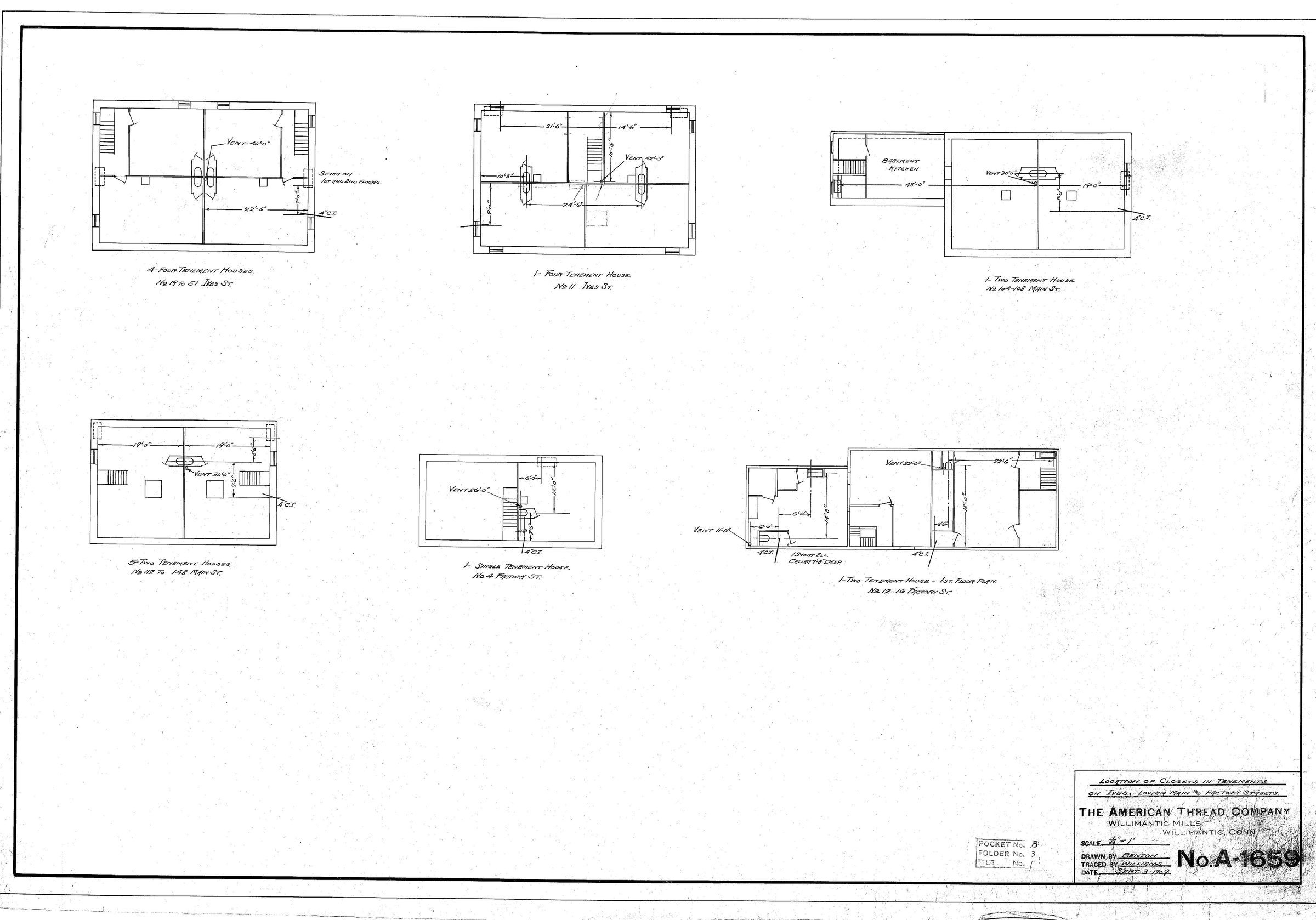
Location of closets (i.e., bathrooms) in tenements on Ives, Lower Main, and Factory Streets, American Thread Company, Willimantic Mills, Willimantic, CT. Scale: 1/8 in. = 1 ft. Note: When the Willimantic Linen Company (the predecessor of the American Thread Company) built these tenements in the 19th century, they lacked indoor plumbing. ATCO added plumbing later.

Collection

American Thread Company Collection

Lexicon

Nomenclature 4.0

Nomenclature Tertiary Object Term

Plan, Floor

Nomenclature Secondary Object Term

Plan

Nomenclature Primary Object Term

Projection

Nomenclature Sub-Class

Graphic Documents

Nomenclature Class

Documentary Objects

Nomenclature Category

Category 08: Communication Objects

Publication Details

Publication Type

Ephemera

Author

American Thread Company

Date Published

Sep 3, 1909

Publication Language

English

Other Names and Numbers

Other Number

A-1659

Location

Location

Cabinet

Map Cases

Room

Dunham Hall Library Reading Room

* Untyped Location

Main Museum Building

Date

July 13, 2022

Provenance

Provenance Detail

American Thread Company, Engineering Department

Copyright

Copyright Holder

Public Domain

Created By

Eves, J.

Create Date

July 13, 2022

Updated By

Eves, J.

Update Date

August 10, 2022