12 Orange Street

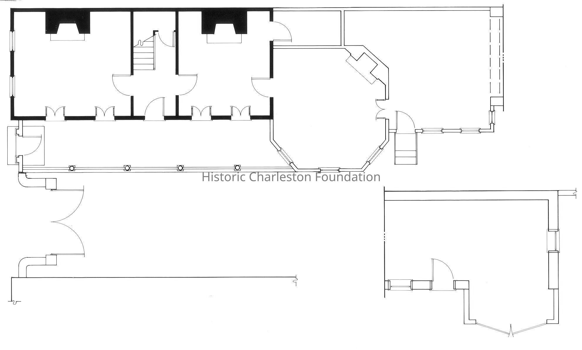
12 Orange - Measured Floor Plan

12 Orange - Measured Floor Plan

Name/Title

12 Orange Street

Entry/Object ID

ORANGE.012.1

Scope and Content

Constructed ca. 1775. Three-story wooden single house. Sits on a portion of Lot #187 of the Grand Modell. Land was granted in 1693 to Jonas Bonhoste, a French Huguenot from Paris. Bonhoste, a carpenter, undoubtedly erected a structure on the lot. Tobias Cambridge bought the property in 1783. File contains FOHG house history (2001); FOHG garden history (2003); historical/chain-of-title research notes (scant, unattributed, undated); measured floor plan; photocopy of household inventory of Tobias Cambridge (1809).

Collection

Historic Charleston Foundation Property Records

Acquisition

Accession

ORANGE.012.

Source or Donor

12 Orange Street

Acquisition Method

Collected by Staff

Lexicon

Search Terms

Orange Street, Eighteenth-Century Expansion, Historic buildings--South Carolina--Charleston

Legacy Lexicon

Object Name

Property File

Archive Details

Archive Size/Extent

1 File Folder

Archive Notes

Finding Aids: Index to Property Files Level of Description: Folder

Location

Location

Shelf

Property File Shelves

Room

Margaretta P. Childs Archives

Building

Missroon House

Category

Permanent

Date

February 7, 2023

Location

Container

PF Box 81

Shelf

Prop File Shelves, Property File Shelves

Room

Margaretta P. Childs Archives

Building

Missroon House

Category

Permanent

Relationships

Related Entries

Notes

ORANGE.012.2

Related Publications

Notes

ORANGE.GEN.1 (property file)

Created By

admin@catalogit.app

Create Date

April 21, 2011

Updated By

admin@catalogit.app

Update Date

February 17, 2023