HUB
Collections
Classifications
About
App
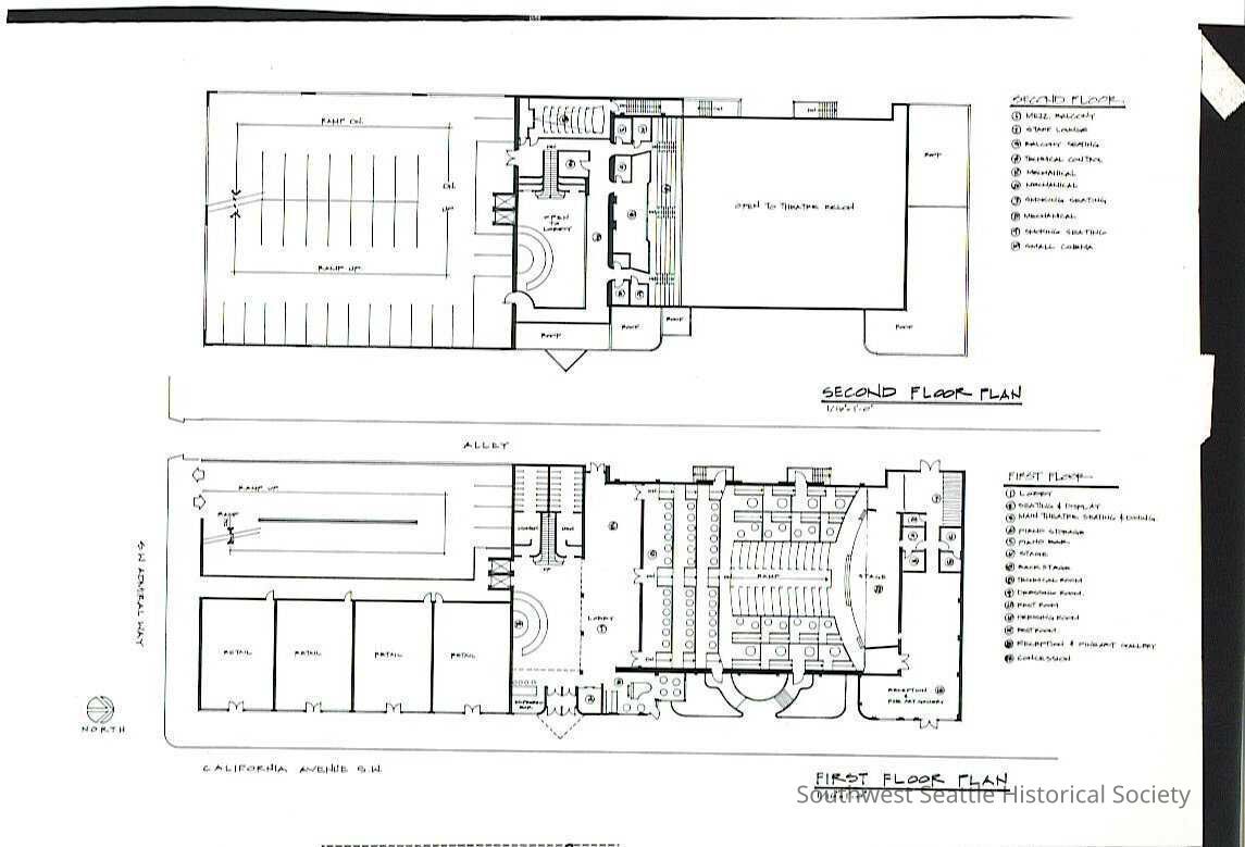
Admiral Theater plans
Photograph
-
Southwest Seattle Historical Society
Resolution: 200
Name/Title
Admiral Theater plans
Entry/Object ID
2010.10.61
Description
BW photo of first and second floor blueprints of the Admiral Theater
Collection
West Seattle Herald